設計師陳一鳳從業11年國立成功大學
藍綠色調融合深木紋,沈穩耐看的現代日系宅
現代風
風格
新成屋
屋況
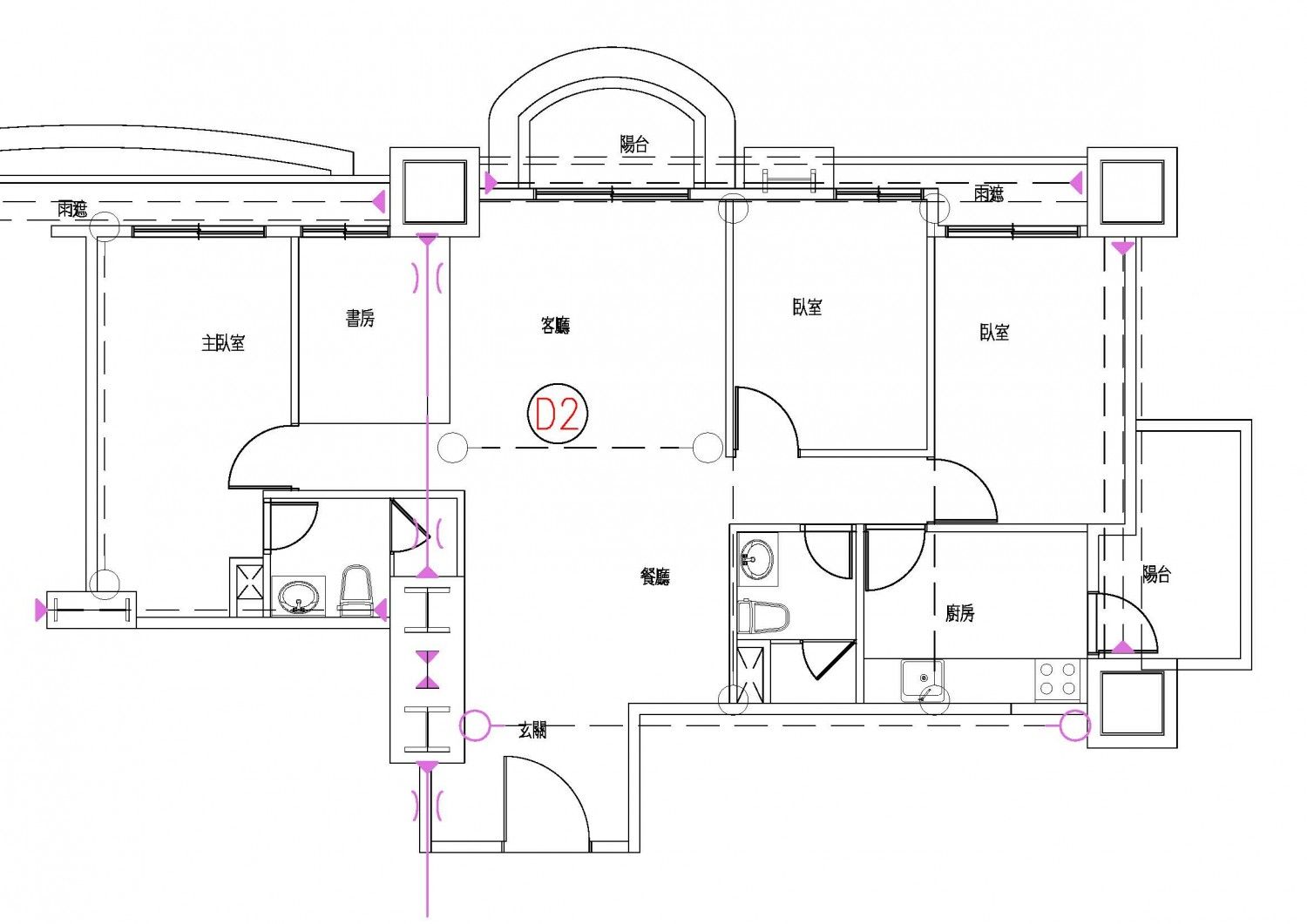
26坪
坪數
4房2廳4衛2陽台
格局
費用分佈
| 明細 | 費用金額 |
|---|---|
| 設計費 | 13萬 |
| 施工費 | 170萬(連工帶料) |
| 其他 | 6萬(監工費6萬) |
設計方案


屋主訴求
設計思路




服務範圍
| 服務 | 說明 |
|---|---|
| 丈量服務 | 5000元(簽約後可以於設計費折抵) |
| 基礎工程 | 軟件工程:窗簾 全屋保護:全屋2分夾板+防潮布+塑膠瓦愣板 水電工程:開關、弱電、插座、燈具線路 木作工程:衣櫃、電視櫃、電視牆、鞋櫃、收納櫃、床頭隔柵板、餐 邊櫃、天花板 油漆工程:藝術漆、油漆 玻璃工程:鋁框玻璃、長虹玻璃、冰柱玻璃、灰鏡 |
| 監工服務 | 6萬(總工程費4%為監工費) 項目主管專人監工、每周在line群組匯報工程進展 |
| 裝修保固 | 保固1年 本工程施作項目 |
*服務範圍屬定製化服務,以設計師和業主洽談方案為準
施工過程
