一鍵同款一鍵同款一鍵同款設計
分享
下載
《靜域軸線》
設計大獎
桃園市
黑白灰
深木色
石紋質感
高機能
視覺
神明廳
弧角
異材質
大板磚
玻璃
黑鏡
格柵
收納
開放式書房
電器櫃
更衣間
貓抓布
現代風格
輕奢風
動線整合
開放式設計
多功能空間
光線節奏
柔化轉角
精緻度
一鍵同款一鍵同款一鍵同款設計

高機能與一致視覺的完美整合

現代風

風格

新成屋

屋況

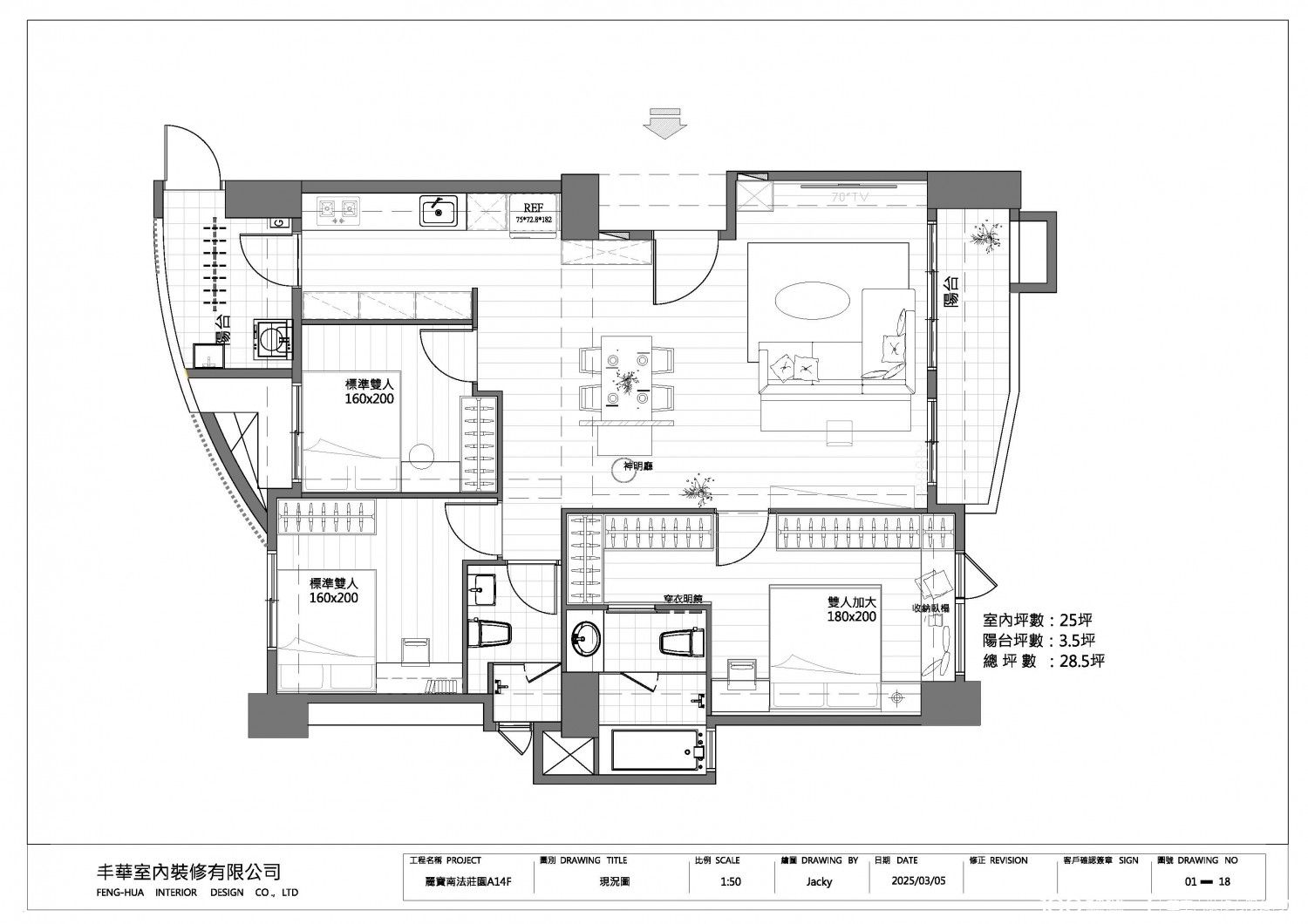
25坪

坪數

3房2廳2衛

格局

社區麗寶南法莊園成員2大人1兒童

費用分佈

總費用 205萬單坪8.2萬
我家裝修報價我家裝修報價
明細費用金額
設計費5萬
施工費200萬

設計方案

設計方案
loading
Before
loading
After

屋主訴求屋主訴求

●神明廳依風水最佳位置設置,書房與主空間能相接、整體設計需要有圓弧造型、材質需要有檔次感 ●主臥需要足夠衣櫃、衣櫃不想要單調的設計 ●整體色系溫和有質感,不要太暗 ●玄關、餐廳、神明廳、客廳、書房、等主空間領域需要分明有層次感

設計思路設計思路

●圓弧設計平立面相連、多樣異材質交疉、開放空間讓整體視覺加分 ●神明廳巧妙與主空間融合,並且以系統櫃設計出現代神明桌的儀式感 ●以奶灰色為基調,搭配深淺、灰櫃體及大板磚、塗料、玻璃等 ●以系統櫃能作到的極限做出不同的設計 ●應用各材質的配搭將
空間效果
測一測我適合哪種風格?
loading
loading
loading
loading
1. 結合開放層架與封閉式櫃體,滿足玄關收納需求同時消弭量體壓迫感。 2. 利用垂直木格柵劃分用餐與過道區域,保留光線通透感並維持空間互動。 3. 藉由天花板弧形導角設計修飾結構大樑,柔化視覺邊界並增添空間流動性。 4. 選用大理石紋餐桌搭配大地色系軟裝,營造溫潤且具質感的現代居家氛圍。

服務範圍

服務說明
丈量服務免費
提案服務免費 3D三版(細部修改另6版3D)
基礎工程部分拆除:玄關地磚、廚房部份牆面 全屋保護:全室PE板+1分夾板 水電工程:全室迴路及插座、燈具安裝 木作工程:造型天花板、曲面造型型、貼皮、開放衣櫃1組 系統工程:系統櫃25組 泥作工程:3間臥室地坪粉光、玄關地磚鋪設 油漆工程:全室批土及局部樂土灰泥
監工服務按總工程費8%收取
裝修保固保固1年 全屋保固

*服務範圍屬定製化服務,以設計師和業主洽談方案為準

施工過程

施工過程
木作工程
木作工程
水電工程
水電工程
冷氣工程
空調工程
油漆工程
油漆工程
系統工程
系統工程

建材配備

品類品牌空間
油漆得利DULUX客廳、臥室、廚房、餐廳、衛浴
相關作品推薦
同公司
同風格·現代風
同預算 · 205萬