設計師蕭嗣昆從業16年復興商工
自然、舒適,強調減法設計的溫馨日式居宅
日式無印
風格
老屋翻新
屋況
65坪
坪數
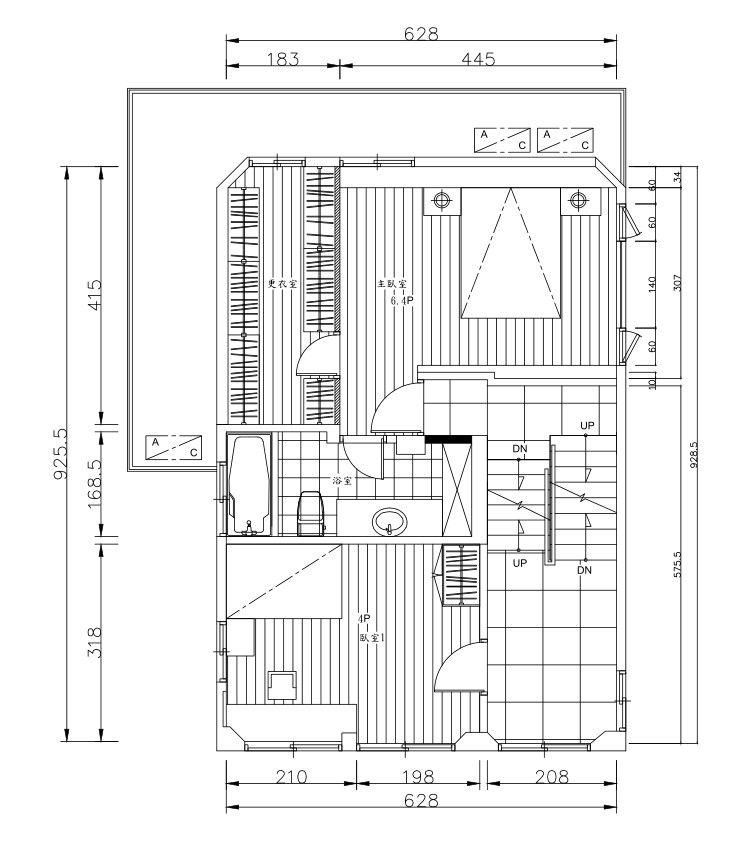
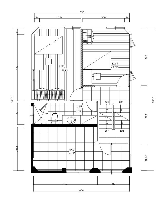
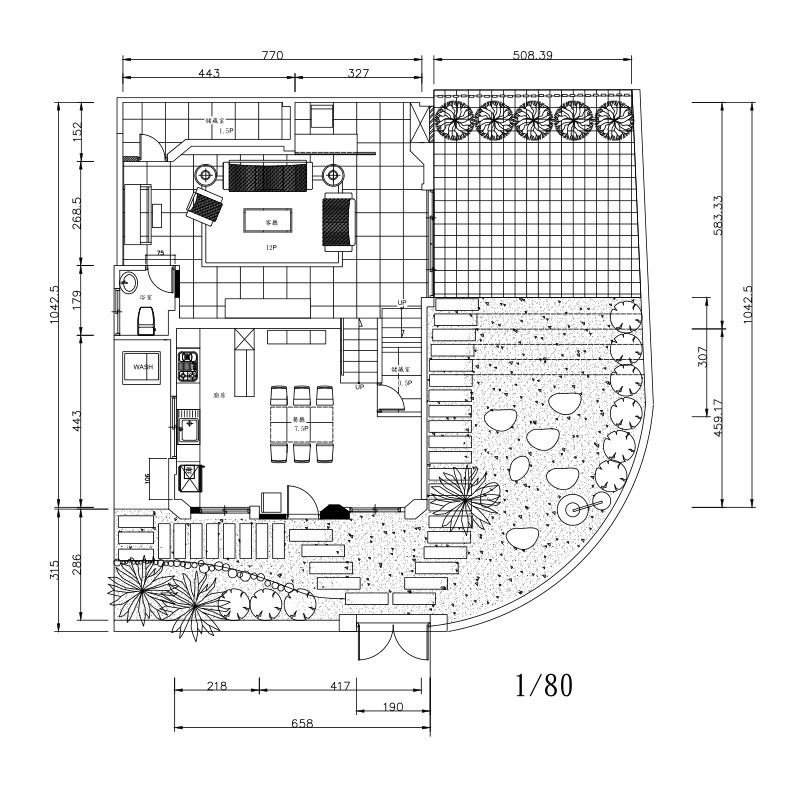
4房2廳2衛2陽台
格局
費用分佈
| 明細 | 費用金額 |
|---|---|
| 施工費 | 110萬 |
| 材料費 | 200萬 |
| 其他 | 10萬 |
設計方案






屋主訴求
設計思路




服務範圍
| 服務 | 說明 |
|---|---|
| 丈量服務 | 免費 |
| 提案服務 | 免費 |
| 基礎工程 | 部分拆除:部分牆體拆除 全屋保護:全屋防潮佈、木心夾板 水電工程:全室 廚房、衛浴線路 電燈 插座部分修改更新 木作工程:天花板 隔間 系統櫃17組 泥作工程:庭院 部分隔間 油漆工程:全室 |
| 監工服務 | 按總工程費8%收取 項目主管專人監工、每天在line群組匯報工程進展 |
| 裝修保固 | 保固1年 施工範圍 |
*服務範圍屬定製化服務,以設計師和業主洽談方案為準
施工過程
建材配備
| 品類 | 品牌 | 空間 |
|---|---|---|
| 油漆 | 得利DULUX | 全室 |
| 全套設備 | TOTO | 衛浴 |
