舒心又療癒的奶茶色系開放式居家
新成屋
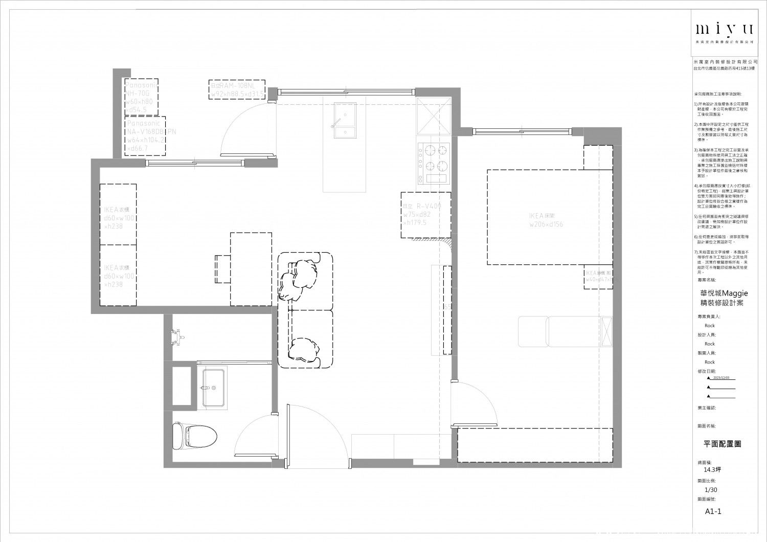
屋況
14坪
坪數
2房1廳1衛1陽台
格局
費用分佈
| 明細 | 費用金額 |
|---|---|
| 設計費 | 4萬 |
| 施工費 | 40萬 |
| 材料費 | 70萬 |
| 其他 | 16萬 |
設計方案


屋主訴求
設計思路


服務範圍
| 服務 | 說明 |
|---|---|
| 丈量服務 | 免費 |
| 提案服務 | 免費 三套設計方案 |
| 基礎工程 | 拆除工城、水電工程、磁磚工程、木作工程、系統櫃工程、油漆工程、冷氣工程、全戶除濕機工程、窗簾工程、玻璃工程、木地板工程、特殊漆工程、細清工程 |
| 監工服務 | 監工管理費8% 項目主管專人監工、每天在line群組匯報工程進展 |
| 裝修保固 | 保固3年 |
*服務範圍屬定製化服務,以設計師和業主洽談方案為準
施工過程
建材配備
| 品類 | 品牌 | 空間 |
|---|---|---|
| 特殊漆 | 進口超能礦泥,霧絨 | 客廳 |
| 開關插座面板 | 國際牌日本原裝Advance系列 | 臥室 |
| 人造石 | 杜邦 | 餐廳 |
| 全自動智能馬桶 | KARAT | 衛浴 |
