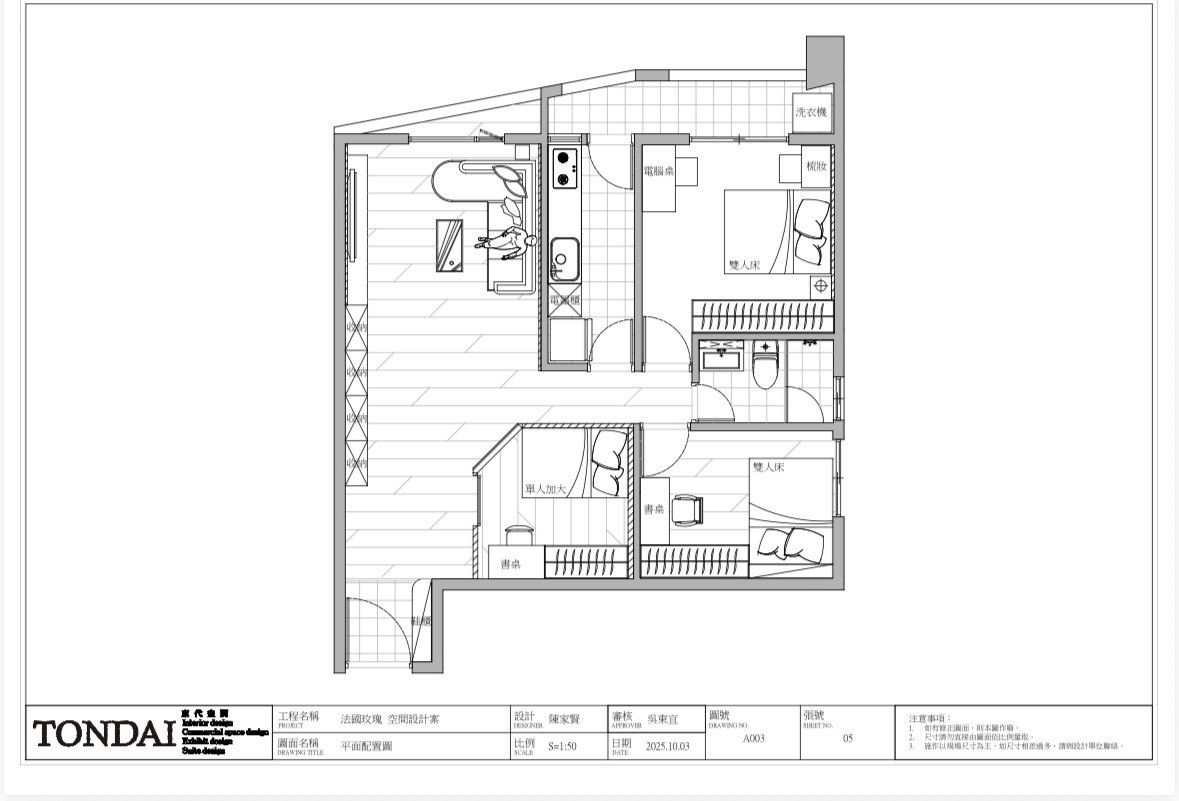
灰階為基底,搭配木質與柔光層次靜謐不冰冷
現代風
風格
老屋翻新
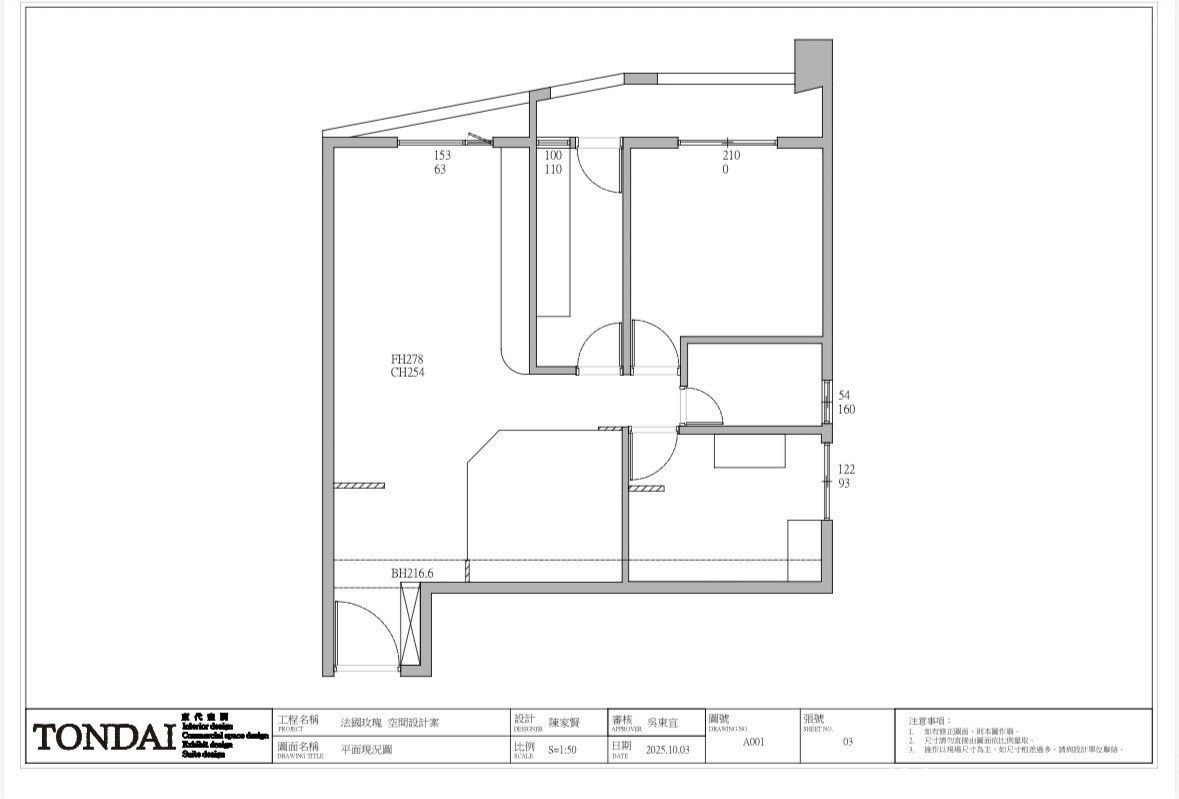
屋況
27坪
坪數
2房1廳1衛1陽台
格局
費用分佈
| 明細 | 費用金額 |
|---|---|
| 設計費 | 10萬 |
| 施工費 | 160萬(+材料費) |
設計方案


屋主訴求
設計思路


服務範圍
| 服務 | 說明 |
|---|---|
| 丈量服務 | 免費 |
| 提案服務 | 免費 三套設計方案、3D效果圖 |
| 基礎工程 | 拆除工程:全室天花板、全屋櫃體、和式隔間、整間浴廁 保護工程:一樓大廳、電梯、11樓梯廳 水電工程:全屋舊線路更新、熱冷水管更新 木作工程:全室天花板、系統櫃6組。 泥作工程:浴廁牆面、地板。 油漆工程:全室油漆。 地板工程:全屋通舖SPC地板、落塵區。 |
| 監工服務 | 按總工程費10%收取 項目專人監工、每天在line群組匯報工程進展 |
| 裝修保固 | 保固1年 |
*服務範圍屬定製化服務,以設計師和業主洽談方案為準
施工過程
