設計師邱聖堯從業15年建國科大
揉合純淨白與溫潤木紋,營造清爽無印氛圍
日式無印
風格
新成屋
屋況
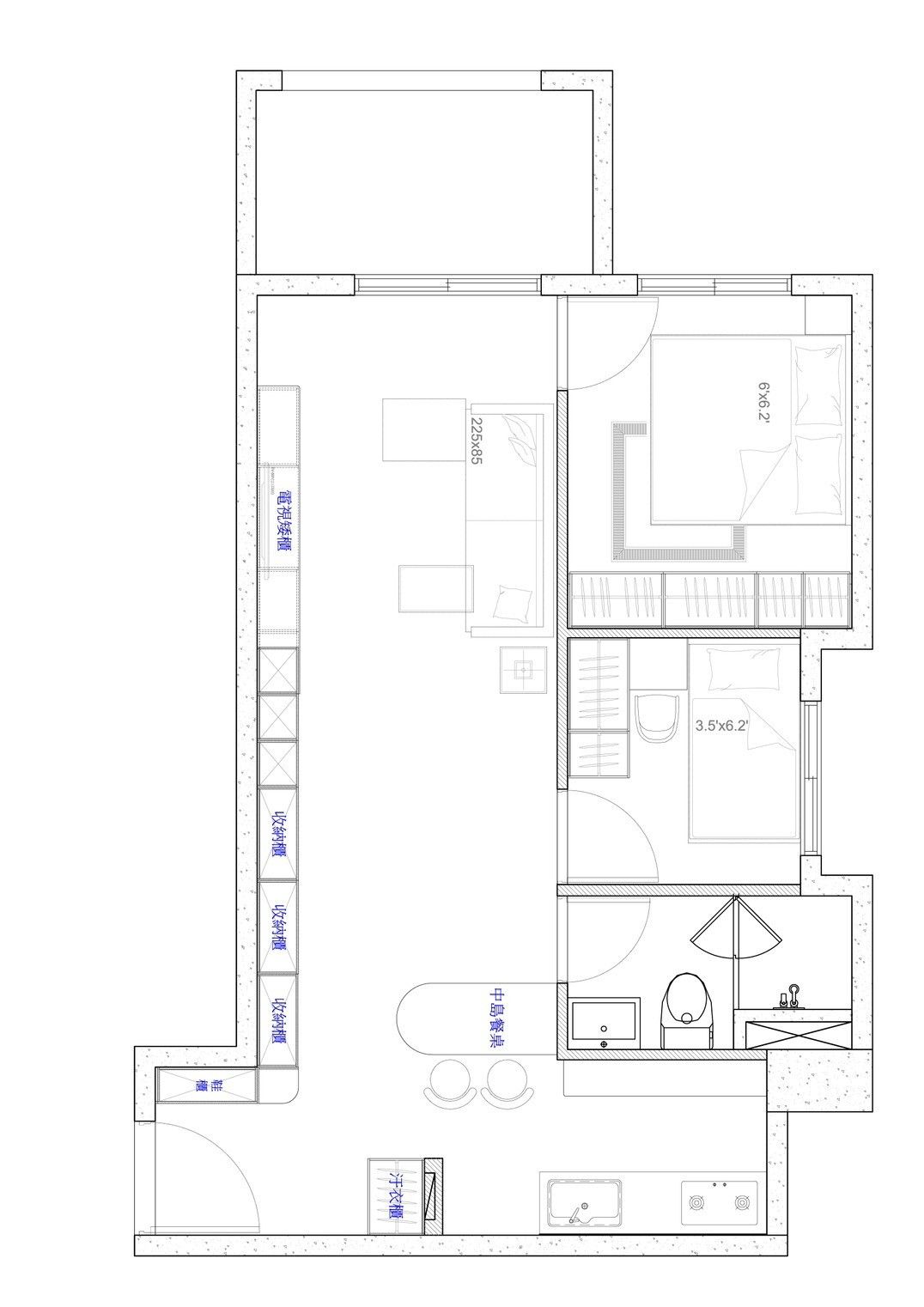
20坪
坪數
2房1廳1衛1陽台
格局
費用分佈
| 明細 | 費用金額 |
|---|---|
| 設計費 | 4.2萬 |
| 施工費 | 37.8萬 |
設計方案


屋主訴求
設計思路




服務範圍
| 服務 | 說明 |
|---|---|
| 丈量服務 | 免費 |
| 提案服務 | 免費 二套設計方案 |
| 基礎工程 | 部分拆除: 全屋保護:塑膠瓦楞板+夾板 水電工程:插座燈具 木作工程:窗簾盒+冷氣包管 系統櫃工程:全屋訂製家具 油漆工程:全屋油漆工程 |
| 裝修保固 | 保固1年 |
*服務範圍屬定製化服務,以設計師和業主洽談方案為準
施工過程
