設計師吳宗儒
柔霧米杏.13坪極簡溫馨宅
極簡主義
風格
新成屋
屋況
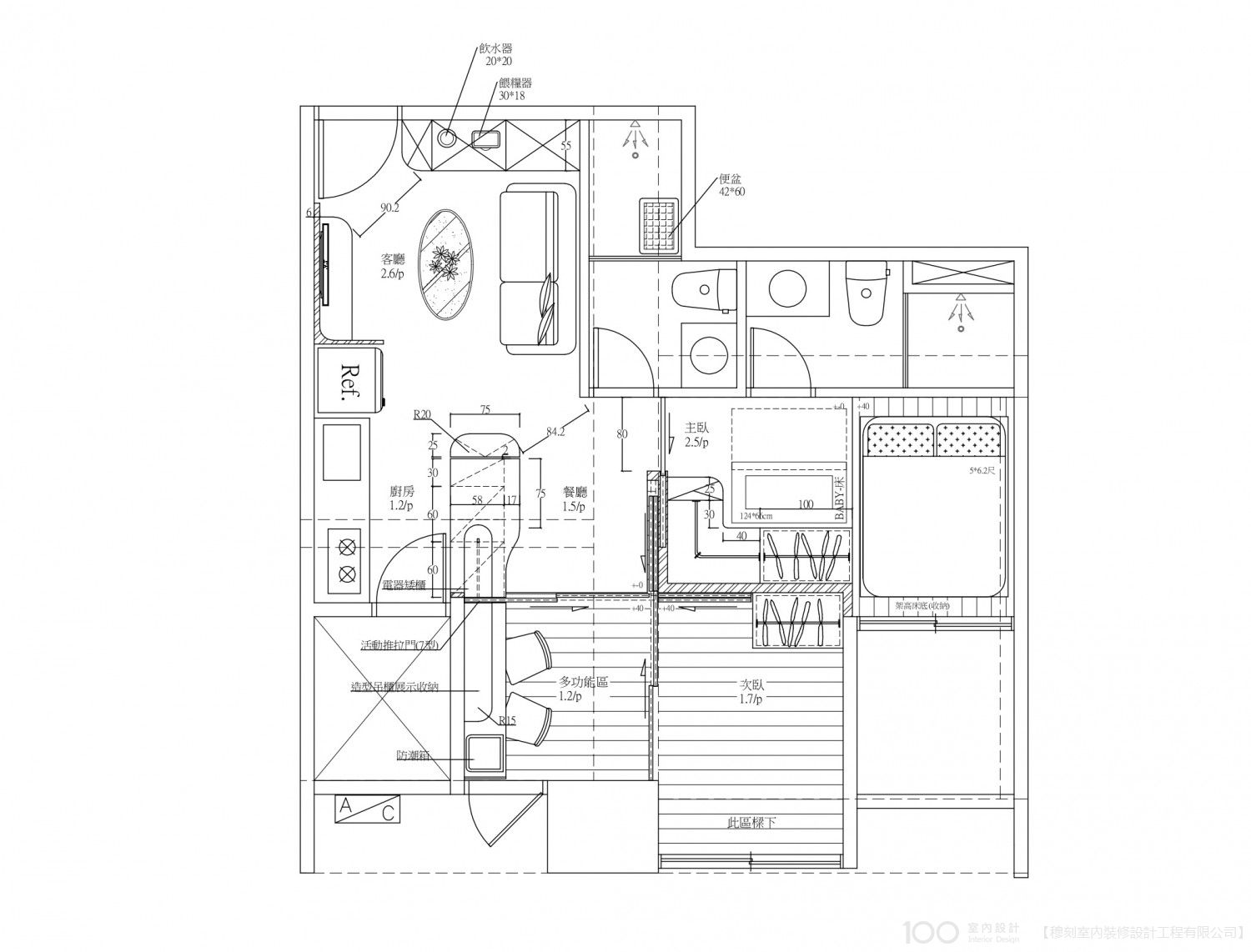
13坪
坪數
2房1廳1衛1陽台
格局
費用分佈
| 明細 | 費用金額 |
|---|---|
| 設計費 | 8萬 |
| 施工費 | 125萬(連工帶料) |
設計方案


屋主訴求
設計思路


服務範圍
| 服務 | 說明 |
|---|---|
| 丈量服務 | 3000元(可全額扣抵工程款) |
| 基礎工程 | 1.現況評估與測量 2.需求溝通與設計規劃 3.工程規劃與報價 4.拆除與結構補強 5.水電與基礎工程 6.空間重塑與裝修 7.軟裝配置與細節收尾 |
| 監工服務 | 總工程費8% 每日監工:工務 / 每周監工:設計師 / 線上LINE匯報 |
| 裝修保固 | (燈具2年、硬裝1年、系統3年) 報價單內容為主 |
*服務範圍屬定製化服務,以設計師和業主洽談方案為準
施工過程
