設計師邱宇晟從業5年屏東科技大學
有限預算以基礎工程為主軸,打造清爽北歐宅
北歐風
風格
老屋翻新
屋況
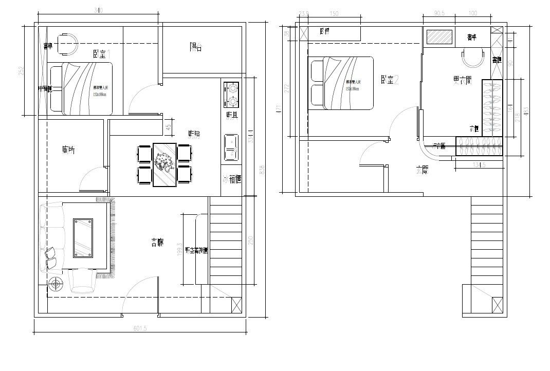
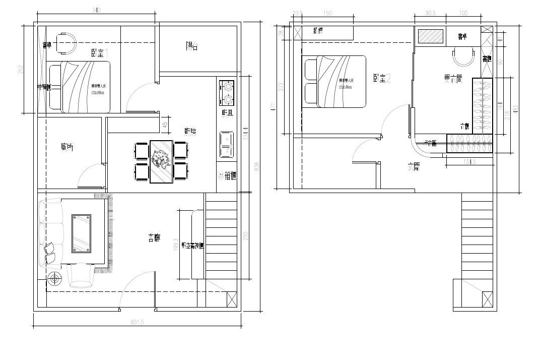
22坪
坪數
3房1廳2衛1陽台
格局
費用分佈
| 明細 | 費用金額 |
|---|---|
| 施工費 | 158萬 |
設計方案


屋主訴求
設計思路




服務範圍
| 服務 | 說明 |
|---|---|
| 丈量服務 | 免費 |
| 提案服務 | 免費 三套設計方案、3D渲染圖 |
| 基礎工程 | 部分拆除:隔間拆除、衛浴打除 全屋保護:夾板保護 水電工程:廚房、衛浴線路、電線重拉 木作工程:系統櫃3組、木工櫃、天花板、隔間、廚具 泥作工程:浴室翻新2套 油漆工程:全室油漆、藝術漆 燈具工程:全室燈具規劃、安裝 |
| 裝修保固 | 保固2年 |
*服務範圍屬定製化服務,以設計師和業主洽談方案為準
施工過程
建材配備
| 品類 | 品牌 | 空間 |
|---|---|---|
| 油漆 | 虹牌 | 客廳 |
| 藝術漆 | 司曼特 | 臥室 |
| 衛浴設備 | 凱薩 | 衛浴 |
