一鍵同款一鍵同款套用這個風格
分享
下載
靜居.有光
新北市
現代輕奢風格
精品感
河岸宅
全釉拋光磚
花磚
實木木皮
木地板
石英石材
水晶燈
一鍵同款一鍵同款套用這個風格

著重於空氣感與視覺延展,打造放鬆質感雅居

現代風

風格

毛胚屋

屋況

30坪

坪數

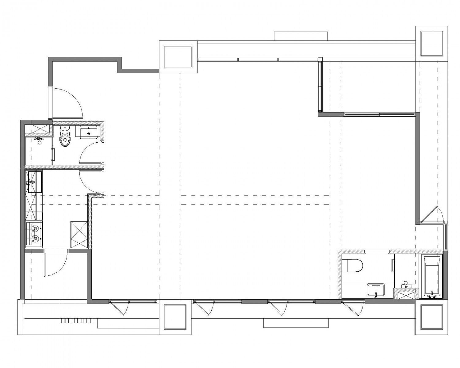
4房2廳2衛2陽台

格局

社區榮群擎川成員1大人2兒童

費用分佈

總費用 412萬單坪13.7萬
我家裝修報價我家裝修報價
明細費用金額
設計費9萬
施工費403萬

設計方案

設計方案
loading
Before
loading
After

屋主訴求屋主訴求

●開放式的客、餐、琴房 ●全室毛胚屋需要天地壁施作 ●現代輕奢風 ●私領域要有充裕的收納 ●配合風水設計

設計思路設計思路

●現代輕奢風 ●木作造型牆面配合風水的設計隱藏門 ●以木質、石材與金屬搭配 ●圓弧型設計跟燈光搭配
空間效果
測一測我適合哪種風格?
loading
1. 結合頂天深木色櫃體與中段鏤空展示區,兼具大容量收納與視覺輕盈感。 2. 利用櫃體轉角延伸設置穿鞋椅,提供舒適換鞋空間並兼作寵物休憩角落。 3. 深色背牆搭配童趣造型木質掛勾,在沉穩氛圍中點綴活潑氣息與實用掛物機能。 4. 配置側邊線性間接光源與投射燈,豐富光影層次並強化空間立體感。

服務範圍

服務說明
丈量服務免費
提案服務免費
基礎工程全屋保護:全屋防潮佈、塑膠瓦楞板 水電工程:全室插座、燈具開關、浴室配管 泥作工程:地板磁磚、2間浴室 木作工程:隔間、造型木作牆、天花 油漆工程:全室乳膠漆 系統櫃工程:衣櫃、書桌、床架
監工服務按總工程費10%收取 項目專人監工、每周在line群組匯報工程進展
裝修保固保固1年

*服務範圍屬定製化服務,以設計師和業主洽談方案為準

施工過程

施工過程
泥作工程
泥作工程
水電工程
水電工程
冷氣工程
空調工程
木作工程
木作工程
油漆工程
油漆工程
系統工程
系統工程
玻璃工程
玻璃工程
相關作品推薦
同公司
同風格·現代風
同預算 · 412萬