一鍵同款一鍵同款套用這個風格
分享
下載
【凝光序曲】 | 屏東・自地自建案
屏東縣
輕美式
天然木皮
PU線板
大理石
鐵道磚
鋁框玻璃
噴漆
室內設計
自地自建
一鍵同款一鍵同款套用這個風格

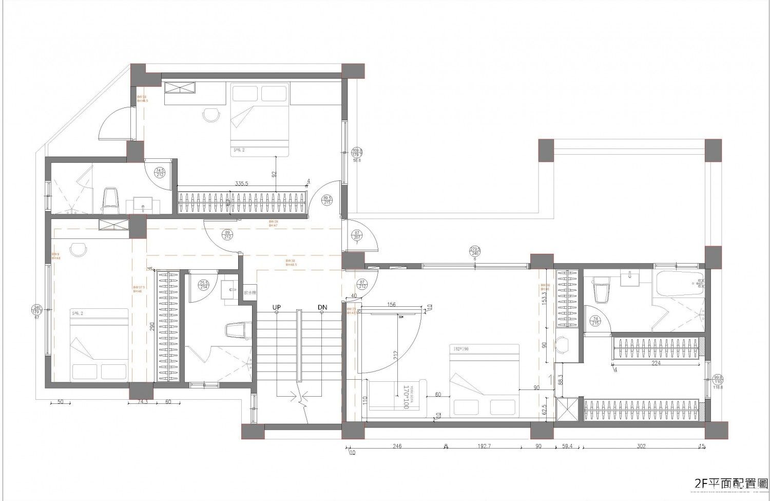
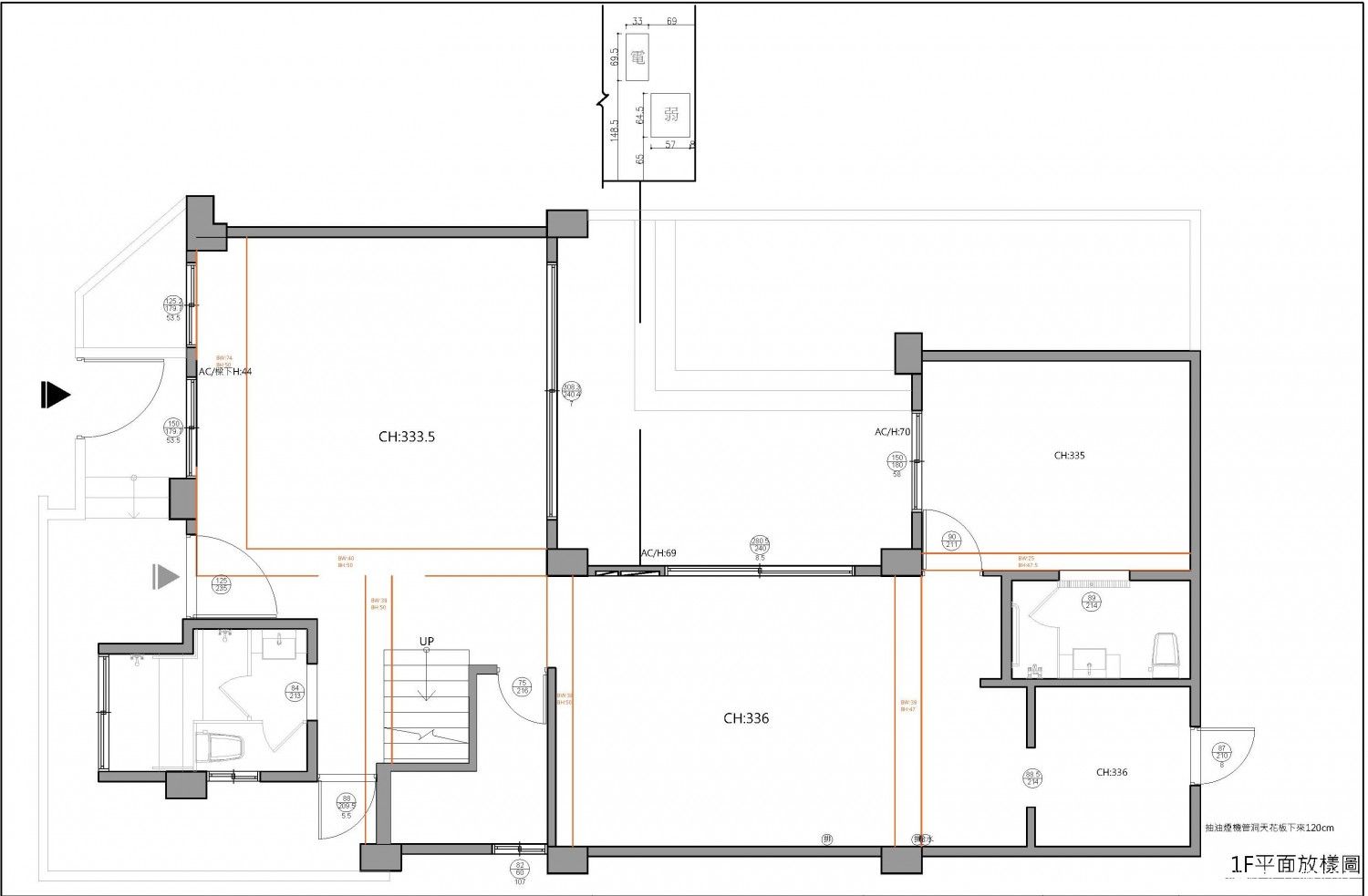
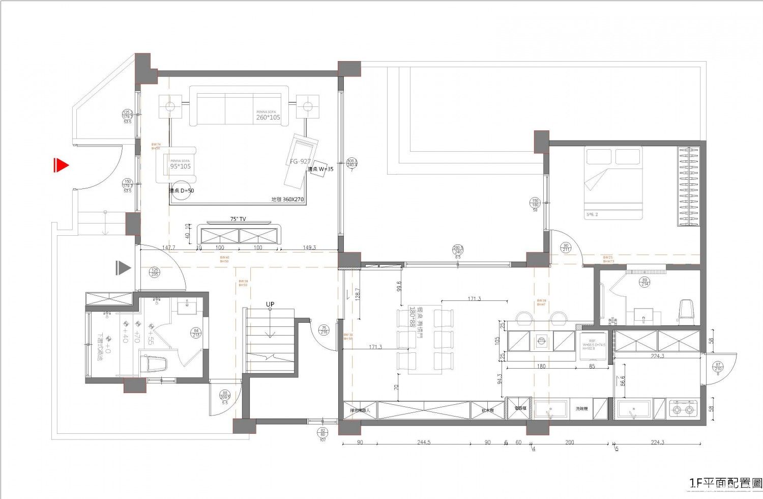
捨繁複、留精緻,定義透天宅的輕美式新典範

混搭風

風格

自地自建

屋況

55坪

坪數

4房2廳3衛

格局

成員2大人2兒童

費用分佈

總費用 282萬單坪5.1萬
我家裝修報價我家裝修報價
明細費用金額
設計費27.5萬
施工費254.2萬

設計方案

設計方案
loading
Before
loading
After
loading
Before
loading
After

屋主訴求屋主訴求

客廳與餐廳跟廚房要區分有隔間 餐廳收納要充裕完整,符合一家人生活習慣與需求 客廳遼闊為主 主臥要有更衣室跟投影幕

設計思路設計思路

1、以低飽和度的奶油白與淺灰為主色,局部點綴聖馬可塗料與大理石搭配,營造出輕美式通透且不失溫度的空間感 2、針對透天的大空間優勢,引進大面積自然採光,並規劃兼具美感與收納的歐風對稱櫥櫃
空間效果
測一測我適合哪種風格?
loading
loading
loading
loading
1. 半高電視牆界定客廳與後方過道,巧妙營造視覺通透。 2. 細緻的立體線板牆搭配大地色皮質沙發,構築溫潤沉穩的生活情境。 3. 落地紗簾與深色布簾雙層配置,靈活調節室內採光並大幅提升立面質感。 #藝術塗料電視牆 #大理石底座

服務範圍

服務說明
丈量服務5000元(大樓3000、透天5000元)
基礎工程水電工程:新設插座開關電源 木作工程:天花板、櫃體、收納 油漆工程:牆面塗裝、藝術塗料 石材工程:天然大理石、矽鋼石 鋁框工程:鋁框玻璃拉門
監工服務免費監工 在line群組匯報工程進展
裝修保固保固1年(1年內保固) 施作工程部分+系統櫃

*服務範圍屬定製化服務,以設計師和業主洽談方案為準

施工過程

施工過程
水電工程
1.多組照明出線點,採多迴路配置 2.電力管線沿梁體與牆面整齊佈設,集中分流至各照明與設備位置。 3.牆面預留多組插座與弱電點位,滿足影音設備與日常用電需求。 4.主電源管線依空間分區配置照明電路。 5.戶外陽台預留燈具出線與設備電源,兼顧戶外照明與生活機能使用。
保護工程
1.全室鋪設木地板施工前,先以夾板全面覆蓋地坪進行施工保護。 2.木地板完成後採紙膠帶固定保護板,避免後續施工刮傷地面。 3.樓梯踏階逐階覆蓋保護板,防止搬運材料造成磨損碰撞。 4.施工動線區域加強地面保護,確保大型設備進出不損地坪。 5.立柱與轉角處加裝泡棉護材,降低施工期間碰撞風險。
木作工程
1.依設計圖施作木作骨架,建立櫃體與牆面結構基底。 2.天花以木作結構搭配板材封板,預留燈具與設備空間。 3.客廳主牆施作木作收納櫃體,整合展示與儲物機能。 4.牆面搭配木質與格柵造型板,提升立面層次與質感。 5.木作完成後進行收邊與調整,確保櫃體線條整齊。
油漆工程
1.木作完成後進行批土整平,修補板材接縫與螺絲孔位。 2.牆面與櫃體表面多次批土打磨,提升漆面平整度。 3.油漆施工前全面覆蓋保護,避免粉塵與噴漆污染。 4.依序施作底漆與面漆,均勻塗佈確保色澤一致。 5.完工後整體檢視與修補,提升牆面與櫃體質感。
鐵件工程
1.鋁框玻璃門片依尺寸訂製,安裝於櫃體展示區域。 2.黑色鐵件框架搭配玻璃材質,提升空間層次與通透感。 3.衛浴區設置玻璃隔間,區分乾濕並維持採光通透。 4.鋁框門片搭配五金鉸鏈,確保開闔順暢與使用穩定。 5.調整門片水平與縫隙,提升整體施工品質。
玻璃工程
1.櫃體安裝玻璃門片,搭配鋁框結構提升展示與通透感。 2.玻璃依尺寸訂製加工,確保安裝後尺寸與結構精準。 3.客廳牆面設置大面鏡面玻璃,延伸空間視覺感受。 4.玻璃邊緣收邊處理,提升整體安全性與施工質感。 5.調整玻璃門片與五金,確保開闔順暢穩定。
清潔工程
1.全室進行粗細清,清除施工粉塵與殘留材料。 2.地坪磁磚全面清洗拋光,恢復表面亮度與質感。 3.玻璃、鋁窗與門框逐一擦拭,提升整體通透度。 4.衛浴設備與五金清潔整理,確保使用前潔淨。

建材配備

品類品牌空間
電視牆塗料聖馬可客廳
壁面虹牌油漆客廳
相關作品推薦
同公司
同風格·混搭風
同預算 · 282萬