設計師柳靜慧 女士從業12年
奶茶色、細膩石材,打造明亮優雅美式宅
美式風
風格
新成屋
屋況
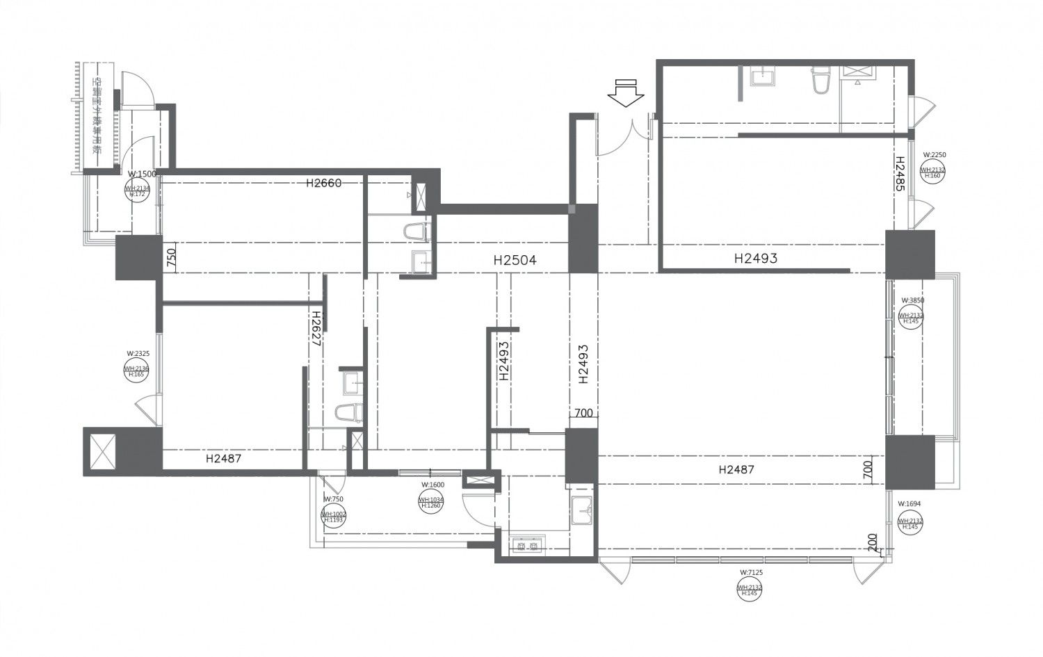
40坪
坪數
3房3廳3衛
格局
費用分佈
| 明細 | 費用金額 |
|---|---|
| 設計費 | 14萬 |
| 施工費 | 436萬 |
設計方案


屋主訴求
設計思路



服務範圍
| 服務 | 說明 |
|---|---|
| 基礎工程 | 保護工程 泥作 水電 木作 油漆(使用班傑明摩爾) 系統櫃 燈具 大板磚 |
| 監工服務 | 工程管理費8% 項目主管專人監工、每天在line群組匯報工程進展 |
| 裝修保固 | 保固1年 |
*服務範圍屬定製化服務,以設計師和業主洽談方案為準
施工過程
建材配備
| 品類 | 品牌 | 空間 |
|---|---|---|
| 油漆 | 班傑明摩爾 | 全室 |
| 油漆 | 得利塗料 | 全室天花板 |
| 石材 | 進口大板磚 | 客廳電視牆 |
| 石材 | 進口大板磚 | 廚房中島 |
