設計師Bonny Yu從業10年
收納隱於結構、圓弧柔化空間的奶霜白小宅
現代風
風格
新成屋
屋況
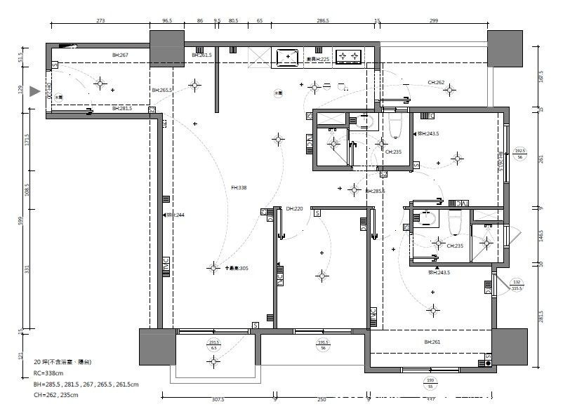
22坪
坪數
3房2廳1衛
格局
費用分佈
| 明細 | 費用金額 |
|---|---|
| 設計費 | 暫未披露,詳情可洽詢公司 |
| 施工費 | 暫未披露,詳情可洽詢公司 |
設計方案


屋主訴求
設計思路




服務範圍
| 服務 | 說明 |
|---|---|
| 丈量提案 | 6000萬(正式簽約可全額折抵) 1-3套平面配置規劃、風格簡報提案討論 |
| 基礎工程 | 拆除與保護工程:拆除部分建材,進場前完成公共區域與電梯動線保護 水電工程: 全室電力規劃、燈光迴路配置、燈具安裝,整合空調與弱電系統 木作工程: 天花包樑修飾、空調管線包覆,搭配圓弧造型優化整體視覺比例 油漆工程: 全室天花與壁面施作 其它工程: 櫃體整合收納、門片安裝,完善空間機能配置 清潔工程: 全屋細清、垃圾清運 |
| 監工服務 | 按總工程費10%收取 項目設計師及工務專人監工、定期在line群組匯報工程進展 |
| 裝修保固 | 保固1年(有裝修施工的所有地方) 有裝修施工的所有地方 |
*服務範圍屬定製化服務,以設計師和業主洽談方案為準
