設計師許德賢Royal Roads University MBA
將光線揉入木質底蘊,創造舒適居家氛圍
日式北歐
風格
老屋翻新
屋況
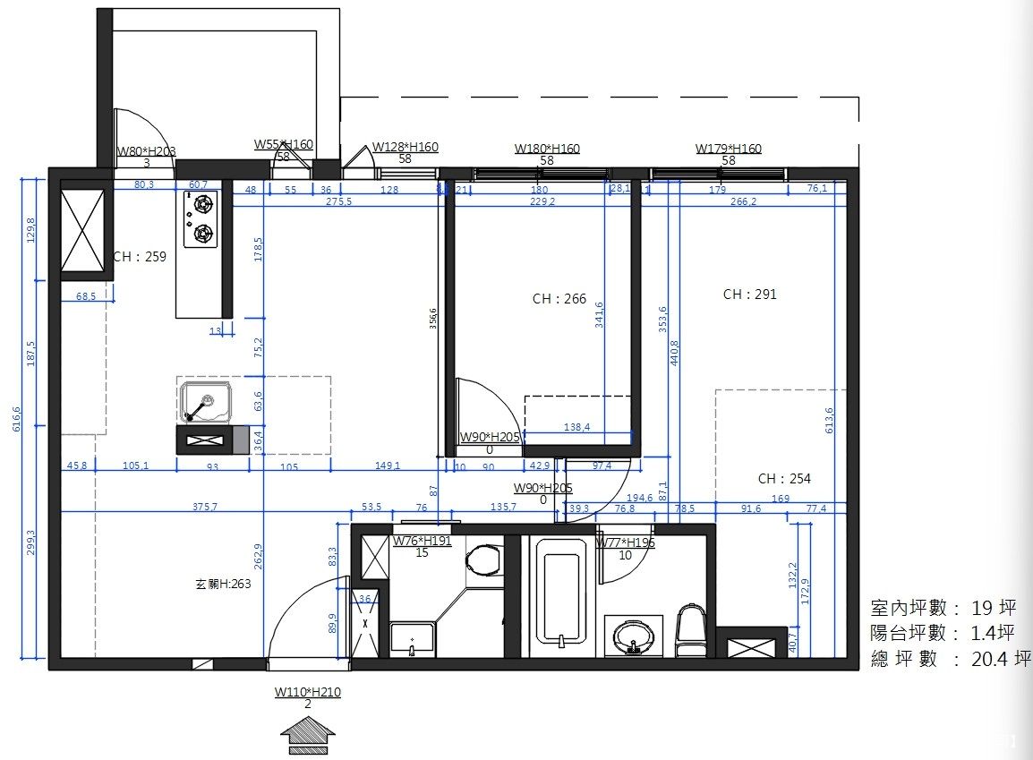
20坪
坪數
3房2廳2衛1陽台
格局
費用分佈
| 明細 | 費用金額 |
|---|---|
| 設計費 | 9.5萬 |
| 施工費 | 220萬 |
設計方案


屋主訴求
設計思路





服務範圍
| 服務 | 說明 |
|---|---|
| 丈量服務 | 免費 |
| 提案服務 | 免費 |
| 基礎工程 | 拆除:兩間衛浴、廚房局部、全室天花板局部、房間地板、原傢俱 全屋保護:全屋塑膠瓦楞板、夾板 水電工程:廚房、衛浴線路、全室電源迴路、插座迴路 木作工程:木作隔間、天花板、格柵 玻璃工程:玻璃隔間、門、烤玻 泥作工程:兩間浴室 油漆工程:全室油漆、特殊漆 門組:全室kd門組更新 系統櫃:全室系統櫃訂定(除客房原櫃體包膜)、含浴櫃廚櫃 地板:全室spc地板 |
| 監工服務 | 按總工程費8%收取 項目主管專人監工、每天在line群組匯報工程進展 |
| 裝修保固 | 保固2年 全屋保固 |
*服務範圍屬定製化服務,以設計師和業主洽談方案為準
施工過程
