設計師許原庭
小空間收納最大化,打造明亮活力空間
現代風
風格
新成屋
屋況
16坪
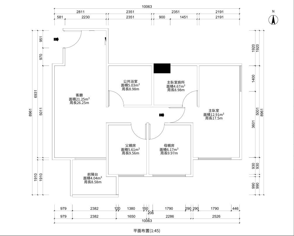
坪數
3房1廳2衛1陽台
格局
費用分佈
| 明細 | 費用金額 |
|---|---|
| 設計費 | 5萬 |
| 施工費 | 55萬 |
| 材料費 | 80萬 |
| 其他 | 10萬 |
設計方案


屋主訴求
設計思路


服務範圍
| 服務 | 說明 |
|---|---|
| 丈量服務 | 免費 |
| 提案服務 | 免費 三套設計方案、3D建模圖 |
| 基礎工程 | 部分拆除: 全屋保護:全屋夾板保護、塑膠瓦楞板 水電工程:客廳、臥室*3、玄關、餐廳 木作工程:系統櫃7組、天花板 泥作工程: 油漆工程:全室油漆,電視牆藝術漆一面 空調工程:4台 窗簾工程:4處 |
| 監工服務 | 按總工程費用10% |
| 裝修保固 | 保固1年 全室有施作區域全保固 |
*服務範圍屬定製化服務,以設計師和業主洽談方案為準
施工過程
