米色與溫潤木質調,舒適日式無印宅
日式無印
風格
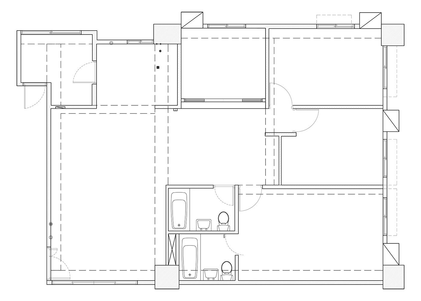
老屋翻新
屋況
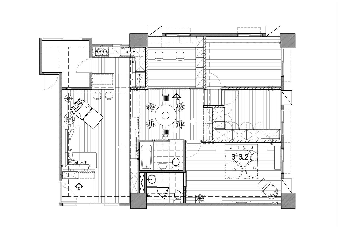
35坪
坪數
4房2廳2衛1陽台
格局
費用分佈
| 明細 | 費用金額 |
|---|---|
| 施工費 | 165萬(木作裝修/連工帶料) |
| 其他 | 85萬(系統櫃費用) |
設計方案


屋主訴求
設計思路



服務範圍
| 服務 | 說明 |
|---|---|
| 基礎工程 | 部分拆除:天花板、浴室、廚房、和室 拆除 全屋保護:PVC瓦楞板保護 水電工程:廚房、衛浴線路、全室水電重整換新 木作工程:全室天花板、廚具、客廳收納、更衣室 泥作工程:廚房、浴室 油漆工程:全室油漆 鋁窗工程:全室窗戶乾式包框隔音窗 |
| 監工服務 | 免費監工 項目主管專人監工、每天在line群組匯報工程進展 |
| 裝修保固 | 保固1-6年(裝修保固1年/系統櫃保固6年) 施作項目/矽利康工程保固1年 |
*服務範圍屬定製化服務,以設計師和業主洽談方案為準
施工過程
建材配備
| 品類 | 品牌 | 空間 |
|---|---|---|
| 油漆 | 虹牌 | 客廳 |
| 地板 | EGGER | 客廳 |
| 地板 | EGGER | 臥室 |
| 地板 | EGGER | 廚房 |
| 地板 | EGGER | 餐廳 |
| 馬桶 | TOTO | 衛浴 |
