設計師宋志鍾
結合異材質,型塑輕奢感空間
現代奢華
風格
新成屋
屋況
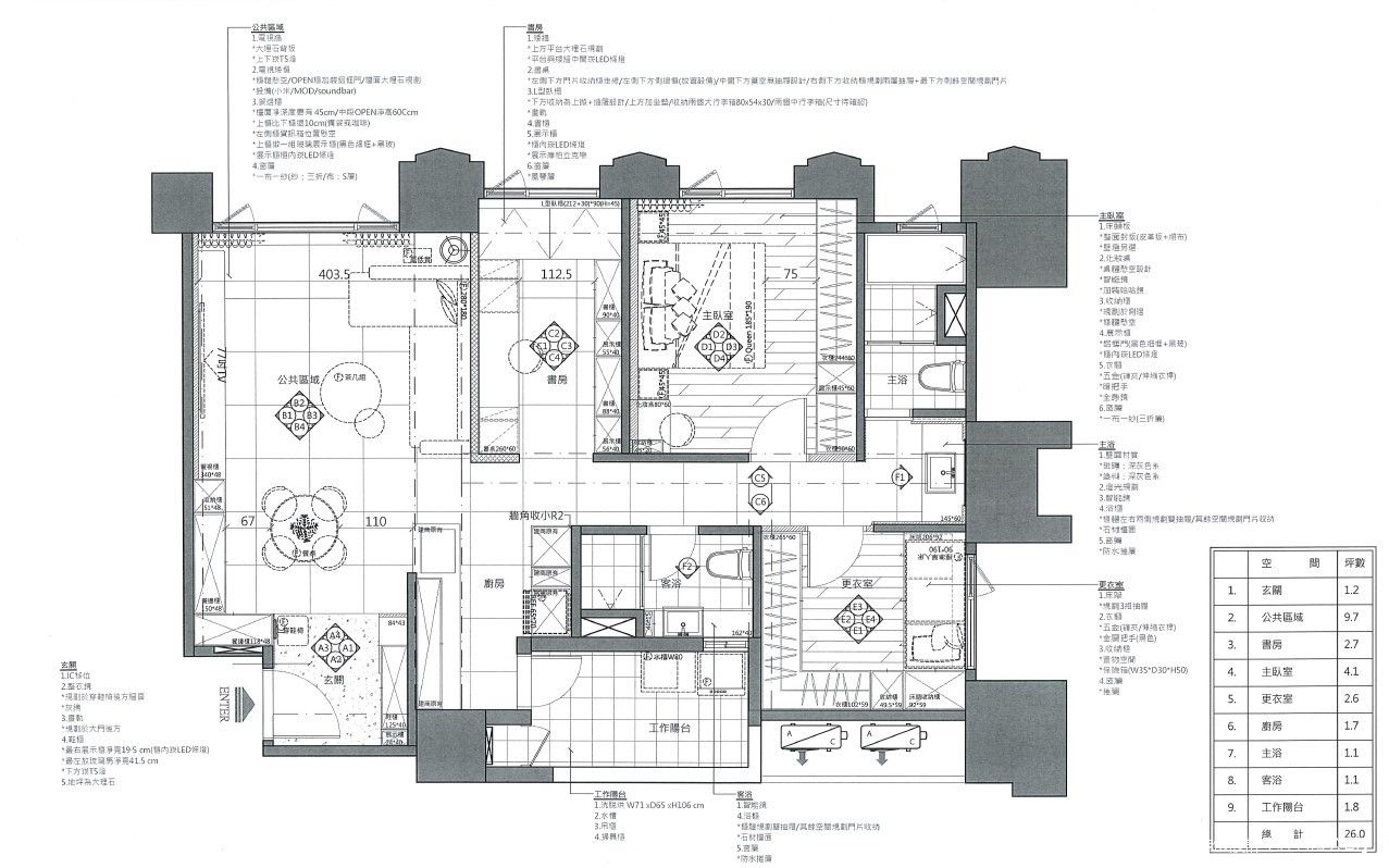
26坪
坪數
3房1廳2衛1陽台
格局
費用分佈
| 明細 | 費用金額 |
|---|---|
| 設計費 | 12萬 |
| 施工費 | 270萬 |
設計方案


屋主訴求
設計思路

服務範圍
| 服務 | 說明 |
|---|---|
| 丈量服務 | 3000元 |
| 提案服務 | 免費 |
| 基礎工程 | 部分拆除:玄關地坪拆除 全屋保護:全屋保護夾板、優塑版、膠布 水電工程:插座新增移位、電視線/網路線定位、冷氣迴路/配管處理、燈具安裝、消防感知器/灑水移位及延長、對講機移位安裝 木作工程:天花造型、窗簾盒、條燈燈溝、掛畫軌道、隔間牆 泥作工程:防水、水泥打底、貼磁磚 油漆工程:天花/窗簾盒/批土油漆、木門噴漆 |
| 監工服務 | 按總工程費8%收取 專人監工,每週於line群組匯報工程進展及提供現場照片 |
| 裝修保固 | 保固1年 |
*服務範圍屬定製化服務,以設計師和業主洽談方案為準
施工過程
