溫潤木質&清水模,現代俐落的日式職人空間
日式風
風格
商業空間
屋況
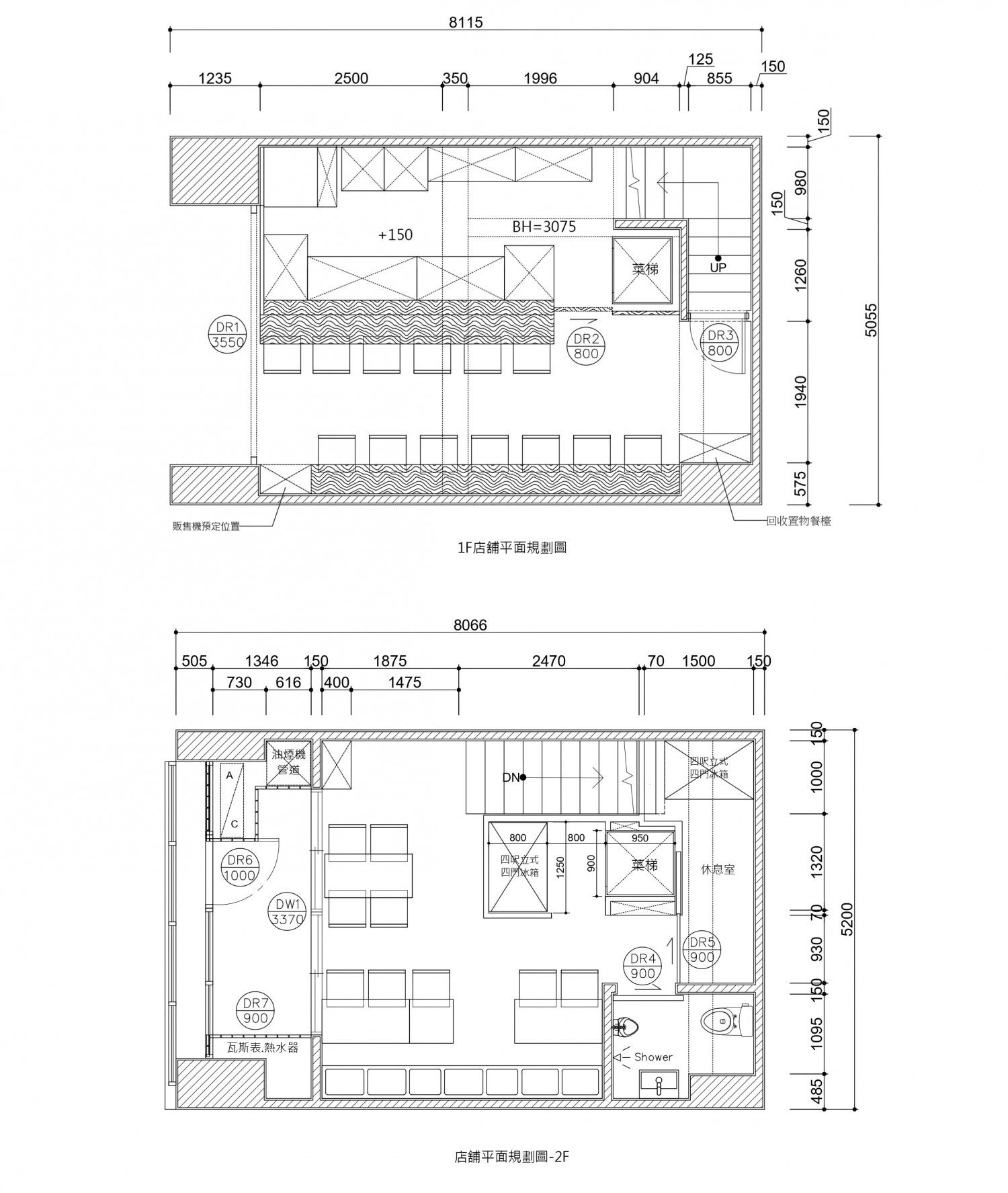
25坪
坪數
2房1衛
格局
費用分佈
| 明細 | 費用金額 |
|---|---|
| 設計費 | 10萬 |
| 施工費 | 265萬(不含廚房設備) |
設計方案


屋主訴求
設計思路

服務範圍
| 服務 | 說明 |
|---|---|
| 基礎工程 | 部分拆除:1F廁所、1F梯下空間、2F欄杆 全屋保護:全屋防潮佈、塑膠瓦楞板 水電工程:廚房、衛浴線路 木作工程:實木櫃體、實木牆板、實木吧檯 泥作工程:廚房地坪 油漆工程:藝術塗料、水泥漆 地坪工程:spc |
| 監工服務 | 免費監工 |
| 裝修保固 | 保固1年 |
*服務範圍屬定製化服務,以設計師和業主洽談方案為準
施工過程
