設計師邱奕新
簡約而精緻,低彩度木質調的北歐空間
北歐風
風格
新成屋
屋況
25坪
坪數
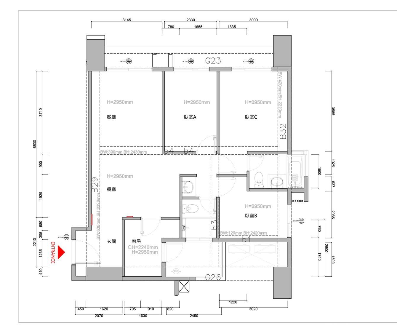
3房2廳2衛1陽台
格局
費用分佈
| 明細 | 費用金額 |
|---|---|
| 施工費 | 193萬 |
設計方案


屋主訴求
設計思路

服務範圍
| 服務 | 說明 |
|---|---|
| 丈量服務 | 免費 |
| 提案服務 | 免費 三套設計方案平面配置圖 |
| 基礎工程 | 空調工程:全室冷氣 全屋保護:全屋木夾板、塑膠瓦楞板 水電工程:廚房、全室插座開關燈具線路 木作工程:平釘天花板、冷氣室內機壁掛座/窗簾盒、造型包樑、假厚牆面、木作造型連動玻璃滑門、門樘修改整平、全室系統櫃、C型鋼TRX吊環 泥作工程:浴室壁磚、浴室/廚房水泥砂打底彈泥施作 油漆工程:全室牆面天花板、仿清水模特殊漆 |
| 裝修保固 | (五金保固1年、防水保固5年) 全室 |
*服務範圍屬定製化服務,以設計師和業主洽談方案為準
建材配備
| 品類 | 品牌 | 空間 |
|---|---|---|
| 油漆 | 得利DULUX | 客廳 |
| 特殊漆 | 司曼特 | 客廳 |
| 馬桶 | TOTO | 衛浴 |
