明亮舒適的自然感輕美式宅
美式風
風格
新成屋
屋況
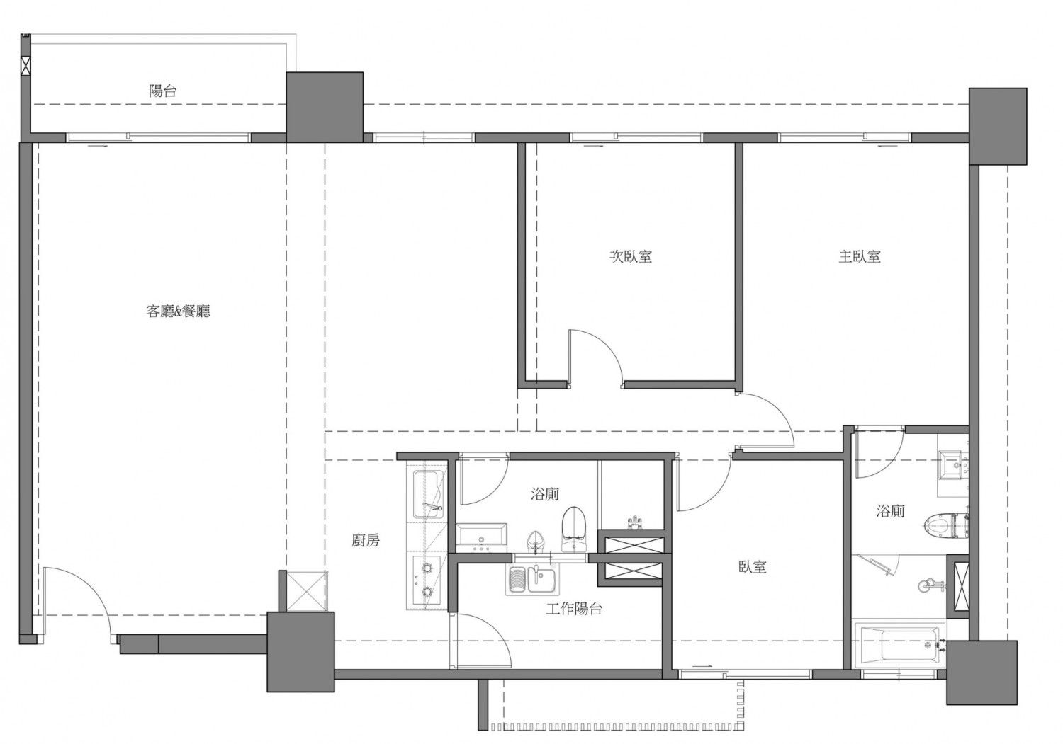
45坪
坪數
3房2廳2衛2陽台
格局
費用分佈
| 明細 | 費用金額 |
|---|---|
| 設計費 | 13萬 |
| 材料費 | 209萬 |
| 其他 | 14萬(監工費) |
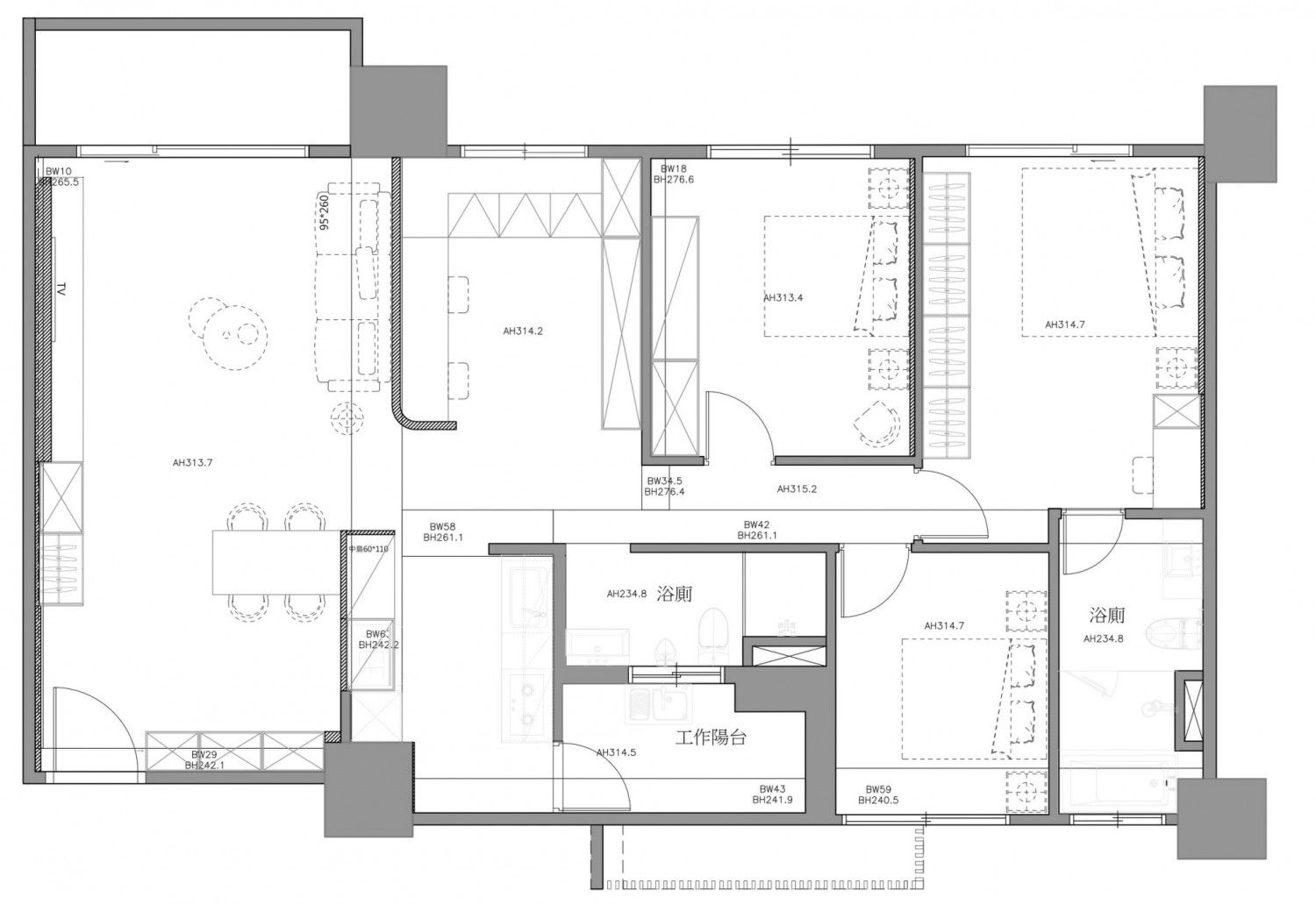
設計方案


屋主訴求
設計思路


服務範圍
| 服務 | 說明 |
|---|---|
| 提案服務 | 免費 |
| 基礎工程 | 室內保護 : 室內1mm夾板 木作工程 : 天花板、電視牆、窗簾盒 油漆工程 : 全室油漆 水電工程 : 全室線路 系統櫃工程 : 全室系統櫃 燈具工程 : 全室燈具 大理石/水磨石工程 : 客廳 磁磚工程 : 玄關區 清潔工程 : 全室清潔 |
| 監工服務 | 按總工程費6% |
| 裝修保固 | 保固1年 |
*服務範圍屬定製化服務,以設計師和業主洽談方案為準
施工過程
建材配備
| 品類 | 品牌 | 空間 |
|---|---|---|
| 大理石&水磨石 | 喜地磁磚 | 玄關 |
| 大板磚 | 瑪摩 | 客廳 |
| 六角磚 | 鼎康進口磁磚 | 客廳 |
| 乳膠漆 | 立邦塗料 | 全室 |
