一鍵同款一鍵同款套用這個風格
分享
下載
粹白|苗栗上好
設計大獎
苗栗縣
簡約度假風
淺色調
現代輕奢風
原木美式風
灰色系
白色系
大板磚
藝術塗料
班傑明漆
長虹玻璃
格柵
洞洞板
幾何跳色設計
臥榻設計
明亮空間
多功能收納
圓弧電視牆
小孩
親子
餐邊櫃
中島
一鍵同款一鍵同款套用這個風格

保有現代輕奢氛圍,簡約而純粹的質感渡假宅

現代風

風格

新成屋

屋況

32坪

坪數

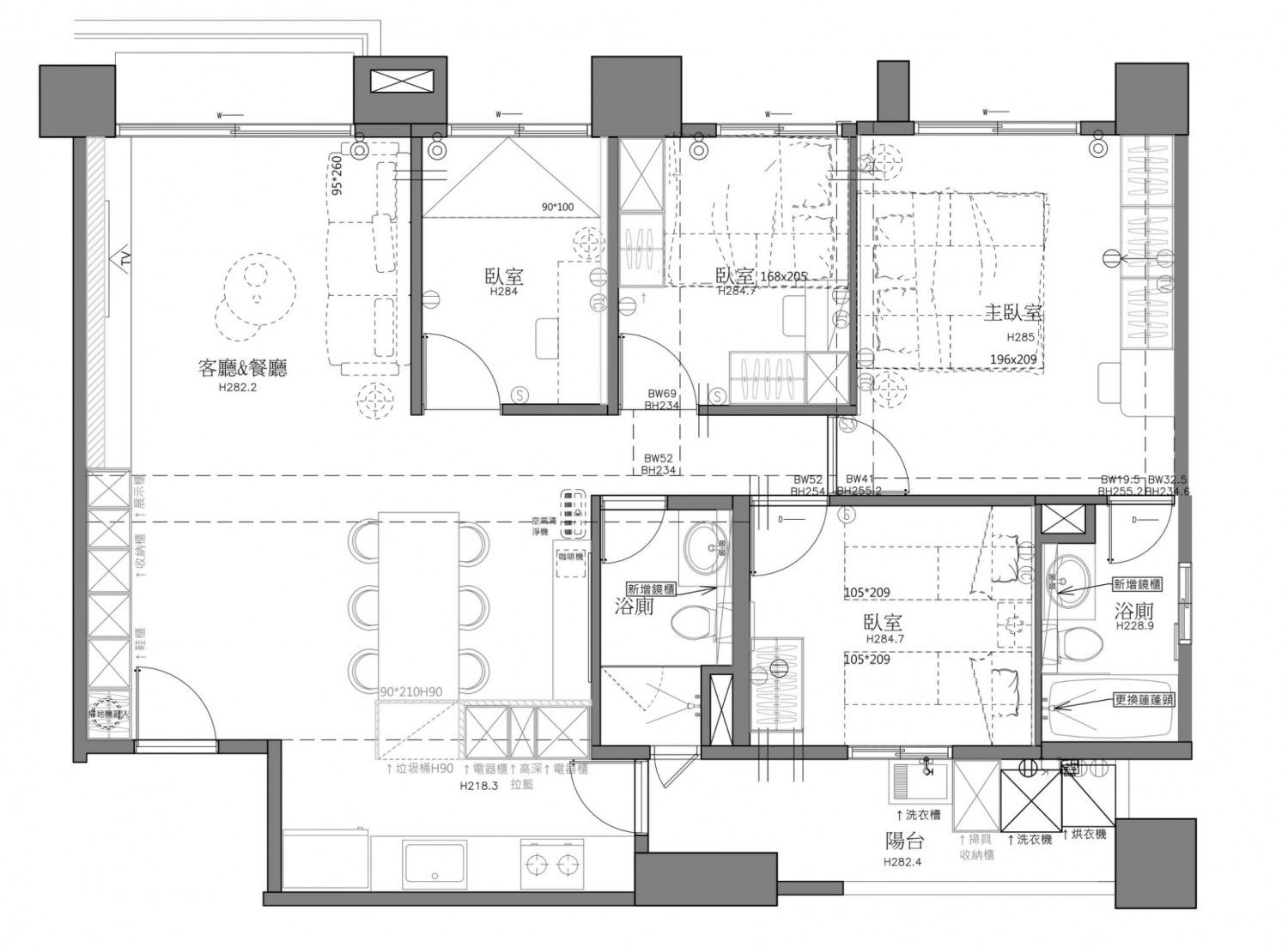
4房2廳2衛

格局

社區上好成員2大人2兒童

費用分佈

總費用 223萬單坪8.9萬
我家裝修報價我家裝修報價
明細費用金額
設計費11萬
施工費200萬
其他12萬(監工費)

設計方案

設計方案
loading
Before
loading
After

屋主訴求屋主訴求

● 以度假屋為設定,希望別於先前居家呈現 ● 沿用建商附有的磁磚與廚具 ● 盼能替廚房新增中島,融入美式起居習慣 ● 適量收納即可;材質好整理為基礎

設計思路設計思路

● 以灰、白色為主色,避免過多木料 ● 簡約純粹,現代輕奢 ● 莫蘭迪綠色,白與木交織 ● 雙色拼接,增添視覺層次 ● 明亮通透,場景獨立性
空間效果
測一測我適合哪種風格?
loading
loading
1. 採用懸空櫃底設計減輕量體壓迫感,同時提供常穿鞋履便利的暫放空間。 2. 運用長虹玻璃作為展示櫃門片,巧妙隱匿收納雜物並豐富立面的透光層次。 3. 透過純白系統櫃穿插仿石紋背板與奶茶色抽屜,提升整體空間的溫潤質感與視覺變化。

服務範圍

服務說明
提案服務免費
基礎工程室內保護 : 室內1mm夾板 木作工程 : 天花板、電視牆、窗簾盒 油漆工程 : 全室油漆 塗料工程 : 客廳電視牆 水電工程 : 全室線路 系統櫃工程 : 全室系統櫃 燈具工程 : 全室燈具 藝術燈具工程 : 餐廳、臥室 清潔工程 : 全室清潔
監工服務按總工程費6%
裝修保固保固1年

*服務範圍屬定製化服務,以設計師和業主洽談方案為準

施工過程

施工過程
木作工程
木作工程
水電工程
水電工程
油漆工程
油漆工程
系統工程
系統工程
燈具工程
燈具工程

建材配備

品類品牌空間
油漆 虹牌客廳
藝術塗料司曼特客廳
班傑明油漆班傑明摩爾臥室
相關作品推薦
同公司
同風格·現代風
同預算 · 223萬