一鍵同款一鍵同款套用這個風格
分享
下載
【奢藏·墨語】御之苑
高雄市
現代輕奢風
天然木皮
鍍鈦
聖馬可塗料
大理石
灰鏡
嫣山嵐
一鍵同款一鍵同款套用這個風格

深邃墨色疊加鍍鈦微光,奢華而不張揚的穩定

現代奢華

風格

新成屋

屋況

31坪

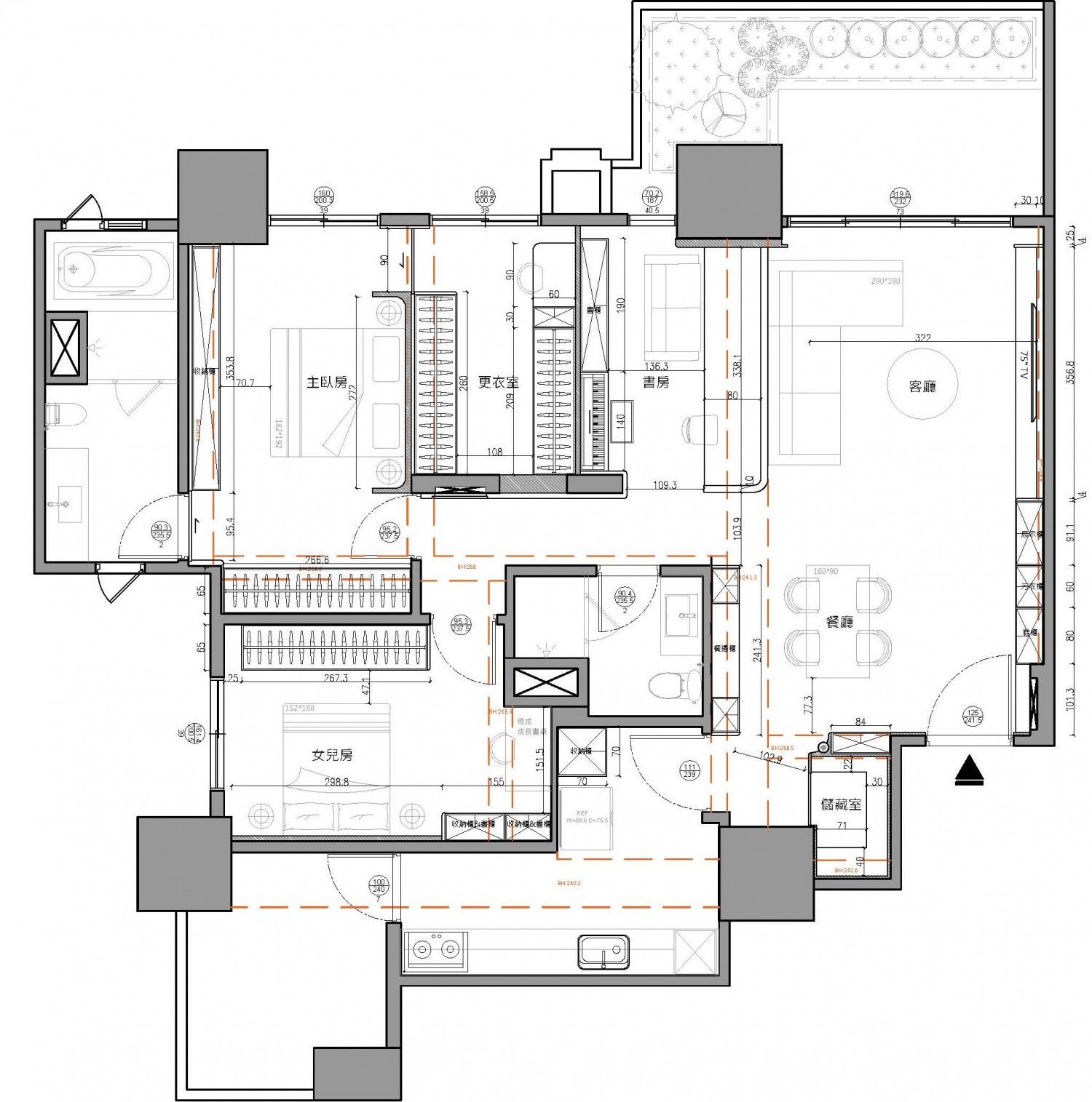
坪數

2房2廳2衛

格局

成員2大人1兒童

費用分佈

總費用 376萬單坪12.1萬
我家裝修報價我家裝修報價
明細費用金額
設計費18.3萬
施工費358萬

設計方案

設計方案
loading
Before
loading
After

屋主訴求屋主訴求

黑色為主要有開放式書房,希望裝修完空間不會變小,主臥要有更衣室(所以把一間房變更衣士),小孩房要以有質調的紫色為主。

設計思路設計思路

本案以黑色為基底奠定空間穩重氣場,巧妙穿插玫瑰金鍍鈦線條,在深色調中勾勒出精緻的溫潤層次 。 公領域格局翻轉:捨棄一間既有客房,將坪效回饋至客廳與書房,創造極大化的通透視野 。 收藏級視覺核心:電視牆選用潑墨感十足的嫣山嵐大理石,搭配格柵機器櫃與預留的電競展示區,兼具機能與視覺衝擊力 。 公、私領域細節藝術:全室採用義大利聖馬可塗料,其細膩礦物肌理在柔和燈光下,營造如精品珠寶盒般的沉靜休憩氛圍 。
空間效果
測一測我適合哪種風格?
loading
《沉靜與光影的過渡》 線性語彙導引:以深黑色系作為視覺底蘊,在門片細節處融入垂直線條,勾勒出穩重且不花俏的迎賓氣場 。 金屬材質點綴:巧妙運用玫瑰金鍍鈦修飾邊緣,利用細微的金屬冷光平衡深色的沉穩,讓入戶空間更顯耐看 。 #玄關設計 #線性美學 #低調奢華

服務範圍

服務說明
基礎工程水電工程:新設插座開關電源 木作工程:天花板、櫃體、收納 油漆工程:牆面塗裝、藝術塗料 石材工程:天然大理石 鋁框工程:鋁框玻璃拉門
監工服務免費監工 在line群組匯報工程進展
裝修保固保固1年(1年內保固)

*服務範圍屬定製化服務,以設計師和業主洽談方案為準

施工過程

施工過程
前期準備
保護前的檢查工作
保護工程
全屋內外防護鋪底、廚浴地板全防護包覆工程
基礎拆除
相關基礎拆除
冷氣工程
室內空調佈管
水電工程
新設插座開關電源、水管佈局
木作工程
天花木作處理
系統工程
櫃體、收納
木作工程
牆面、輕隔間
油漆工程
室內油漆塗料打底與塗佈
石材工程
石材鐵件工程處理
鐵件工程
鐵件工程處理
清潔工程
精細清、檢修收尾等

建材配備

品類品牌空間
塗料聖馬可塗料臥房床頭
石材嫣山嵐大理石客廳電視牆
油漆虹牌乳膠漆壁面
地板材質Quick Step地板
壁面飾材遠東鍍鈦板客廳
相關作品推薦
同公司
同風格·現代風
同預算 · 376萬