集結個性與質感的暗色系現代工業奢華宅
現代工業
風格
新成屋
屋況
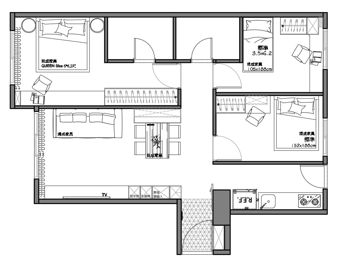
22坪
坪數
3房2廳2衛1陽台
格局
費用分佈
| 明細 | 費用金額 |
|---|---|
| 施工費 | 45萬 |
| 材料費 | 50萬 |
| 其他 | 12萬 |
設計方案


屋主訴求
設計思路




服務範圍
| 服務 | 說明 |
|---|---|
| 基礎工程 | ▪全屋保護:1分夾板、PU白色保護板 ▪水電工程:水電、弱電、燈具迴路、安裝衛浴設備 ▪木作工程:房間天花木作工程,電視面貼訪大理石造型牆 ▪油漆工程 : 全室油漆工程+天花特殊漆處理+主臥室床頭進口班傑明漆 ▪系統櫃工程 : 玄關鞋櫃、客廳電視櫃、餐廳電器櫃、主臥室衣櫃+書桌、次臥室衣櫃+書桌、長輩房衣櫃.書桌 ▪玻璃 鋁框工程 : 玄關鏡子、廚房拉門 ▪地板工程 : 玄關落塵區 |
| 監工服務 | 按總工程費6%收取 工務專人監工/每周在line群組匯報工程進展 |
| 裝修保固 | 保固1年 |
*服務範圍屬定製化服務,以設計師和業主洽談方案為準
施工過程
