一鍵同款一鍵同款套用這個風格
分享
下載
月藝。景心
新北市
現代風
灰色
黑色
塗料
小坪數
間接照明
特殊塗料
一鍵同款一鍵同款套用這個風格

月映雅居、藝境入心,揉合現代美學靜謐人文

現代風

風格

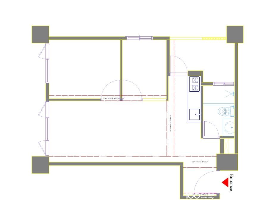
新成屋

屋況

18坪

坪數

2房1廳1衛1陽台

格局

成員2大人

費用分佈

總費用 120萬單坪8萬
我家裝修報價我家裝修報價
明細費用金額
設計費7萬
施工費61萬
材料費45萬

設計方案

設計方案
loading
Before
loading
After

屋主訴求屋主訴求

●新現代風格灰色系基調 ●黑色配色點綴 ●小宅空間公私領域劃分 ●充足收納機能

設計思路設計思路

●以灰階低彩度為基底,搭配藝術塗料及黑色元素點綴,形塑現代沉穩風格 ●大量收納以隱藏式門片處理,視覺更乾淨俐落 ●開放式客餐廚串聯,強化生活互動動線 ●燈光層次設計,營造柔和居家氛圍 ●展示與收納並存,增添生活感細節
空間效果
測一測我適合哪種風格?
loading
loading
loading
loading
1.玄關櫃採懸浮設計,底部搭配間接光源,創造輕盈入口印象 2.鋪設深色地磚並以金屬飾條銜接室內木地板,明確界定落塵區域以維持整潔 3.以粗獷石皮牆面結合深色懸浮抽屜,透過壁燈光影投射強化材質立體感與藝術氛圍 4.頂天高櫃滿足收納需求,無把手設計整體更簡約俐落 5.門片隱藏電箱,外觀維持立面一致,同時保留開啟維修機能

服務範圍

服務說明
丈量服務5000元(可折抵工程費用)
提案服務0.5萬(可折抵工程費用)
基礎工程全屋保護:全屋防潮布、塑膠瓦楞板 水電工程:客廳及臥室電路配置 木作工程:系統櫃5組 泥作工程 油漆工程:義大利spiver塗料
監工服務監工8% 項目主管專人監工、每天在line群組匯報工程進展
裝修保固保固1年

*服務範圍屬定製化服務,以設計師和業主洽談方案為準

施工過程

施工過程
木作工程
天花板木作工程
系統工程
系統櫃工程

建材配備

品類品牌空間
塗料Spiver義大利天然塗料客廳
相關作品推薦
同公司
同風格·現代風
同預算 · 120萬