設計師廸然從業16年國立台灣藝術大學
絢爛不凡、雅緻耀眼,堆砌奢華細緻的生活感
混搭風
風格
新成屋
屋況
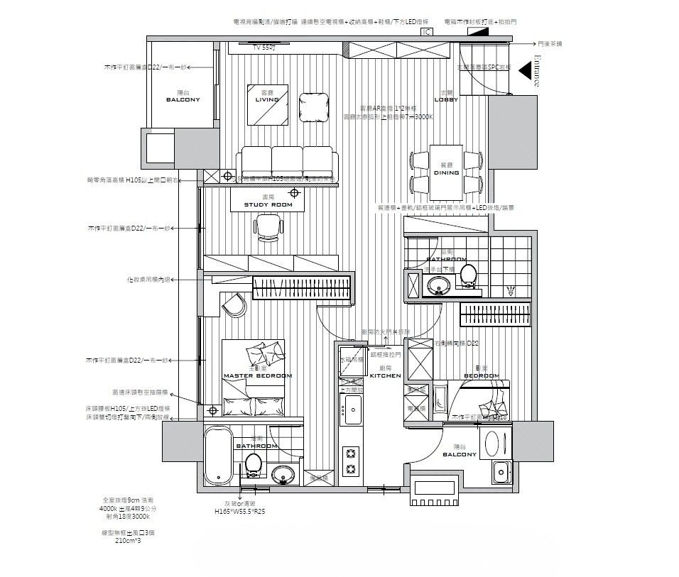
25坪
坪數
3房2廳2衛2陽台
格局
費用分佈
| 明細 | 費用金額 |
|---|---|
| 設計費 | 11萬 |
| 施工費 | 110萬 |
| 材料費 | 59萬 |
設計方案


屋主訴求
設計思路




服務範圍
| 服務 | 說明 |
|---|---|
| 丈量服務 | 5000元(可折抵工程費用) |
| 提案服務 | 0.5萬(可折抵工程費用) |
| 基礎工程 | 全屋保護:全屋防潮布、塑膠瓦楞板 水電工程:客廳及臥室電路配置 木作工程:系統櫃7組 泥作工程 油漆工程:室內大樑跳色、義大利spiver塗料電視牆 |
| 監工服務 | 監工8% 項目主管專人監工、每天在line群組匯報工程進展 |
| 裝修保固 | 保固1年 |
*服務範圍屬定製化服務,以設計師和業主洽談方案為準
施工過程
建材配備
| 品類 | 品牌 | 空間 |
|---|---|---|
| 塗料 | Spiver義大利天然塗料 | 客廳電視牆 |
