算同款報價算同款報價
分享
下載
層光透影

600萬

預算

現代風

風格

新成屋

屋況

50坪

坪數

3房2廳3衛

格局

設計理念:
層光透影──對於家的塑造,每個人總有夢想與期待,利用空間塑造光線,在光與影之中感受家的溫度。 喜愛大自然的屋主一家人,崇尚簡約,喜歡自由不受拘束與簡單線條的生活風格,在配置上一方面要滿足屋主的生活機能,一方面要將人與空間做最適合的組合。

構設計 已做裝修登記排名

42項設計大獎
72套作品
40篇開箱
穩定合作工班
一年內保固
接客變案
到府丈量
簽訂合約保障
挑選傢俱
初步報價
總監設計
整屋費用:接案150萬起
設計費用:8000 元/坪起
新成屋:6萬/坪起
毛胚屋:10萬/坪起
老屋翻新:10萬/坪起
接案區域:六都可接案
請設計師聯絡我
線上諮詢

設計方案

設計方案

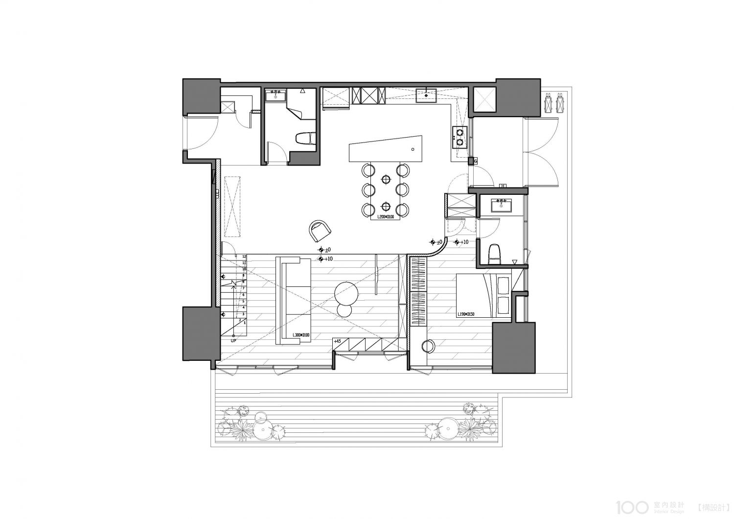
屋主訴求屋主訴求

1. 健身運動的空間 2. 不受拘束的使用模式 3. 住辦合一的發展區域

設計思路設計思路

1. 一樓設計為健身與辦公混合空間,提供靈活的使用方式。 2. 保留寬敞的公共空間,並整合餐廚、客廳等功能區域。 3. 利用黑白灰的色調和清水模材質,營造不同質感的層次變化。

設計亮點設計亮點

1. 玄關廊道設計促進上下區域的互動交流。 2. 客廳挑高設計,減少冗雜陳設,強調家具焦點。 3. 餐廚區設置開放式吧檯,促進交流與互動。
空間效果
測一測我適合哪種風格?
loading

作品開箱

作品開箱
data.title

用簡約素材打開空間感,打造靈活住辦合一大空間

2019-04-01

相關作品推薦
同公司
同風格·現代風
同預算 · 600萬