一鍵同款一鍵同款套用這個風格
分享
下載
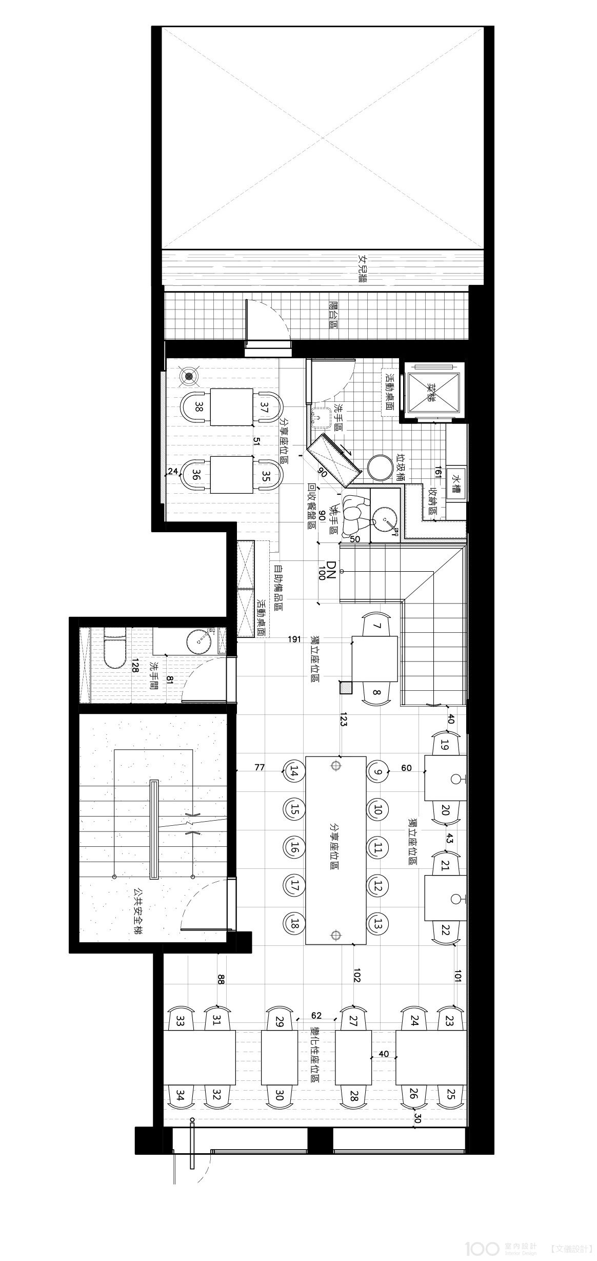
吉野家。Concept

未披露

預算

日式風

風格

商業空間

屋況

46坪

坪數

1房1衛

格局

一鍵同款一鍵同款套用這個風格
空間效果
測一測我適合哪種風格?
loading
loading
loading
loading
相關作品推薦
同公司
同風格·日式風