套用這個風格
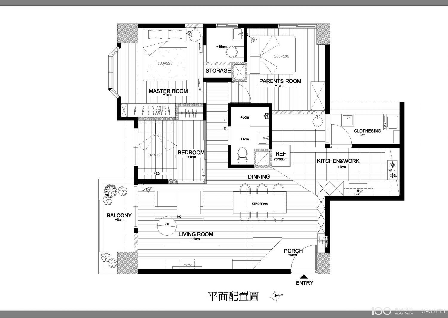
格局實景圖
客廳(11)
餐廳(2)
臥室(9)
書房(1)
廚房(2)
衛浴(3)
其他(2)
唯光好室
添加LINE
看官網
追蹤FB
姊妹悄悄話-好日子
150萬
預算
日式風
風格
中古屋
屋況
26坪
坪數
3房2廳2衛
格局
套用這個風格
空間效果
測一測我適合哪種風格?
相關作品推薦
同公司
同風格·日式風
同預算 · 150萬