一鍵同款一鍵同款套用這個風格
分享
下載
剪色工藝

未披露

預算

混搭風

風格

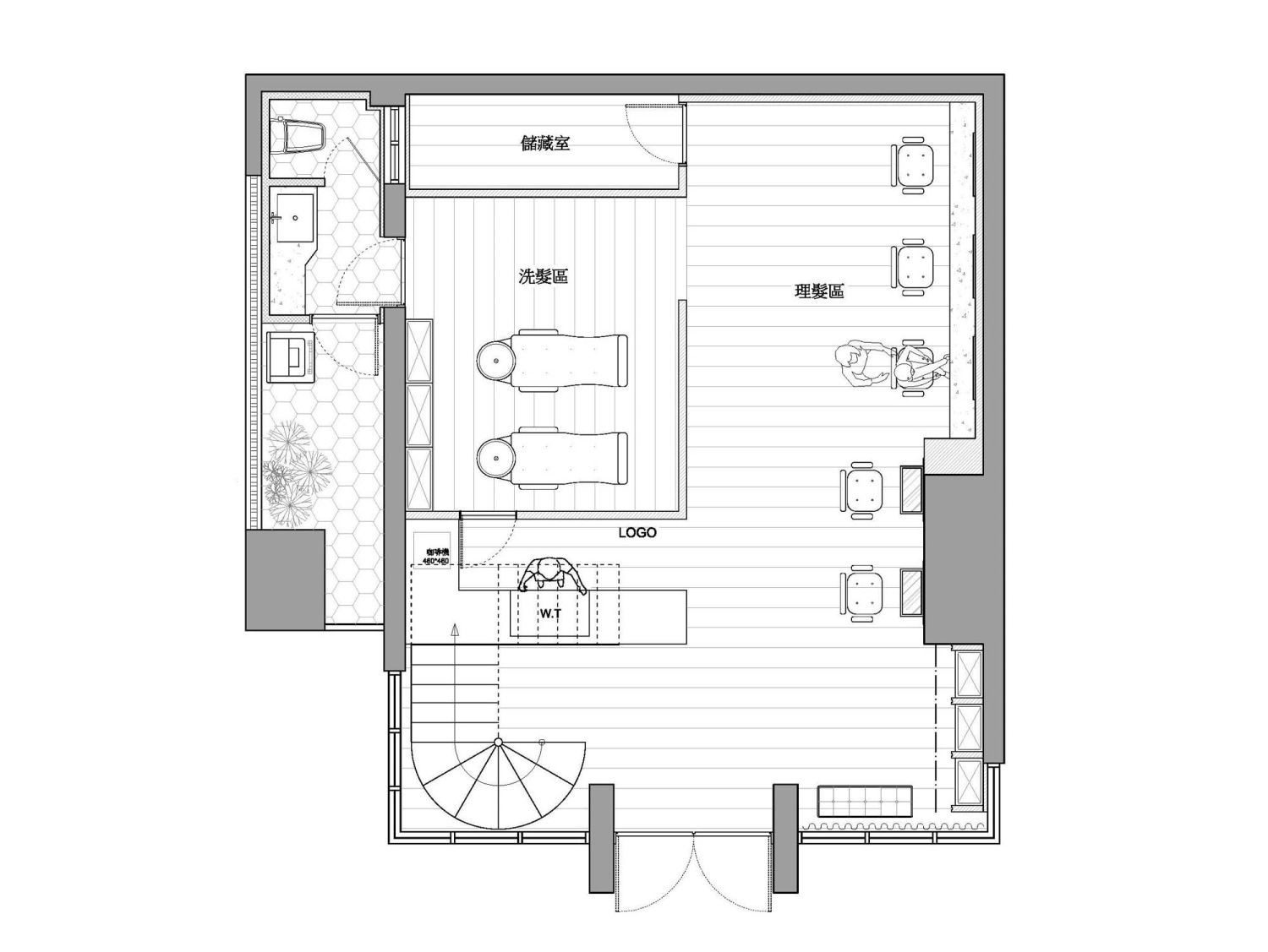
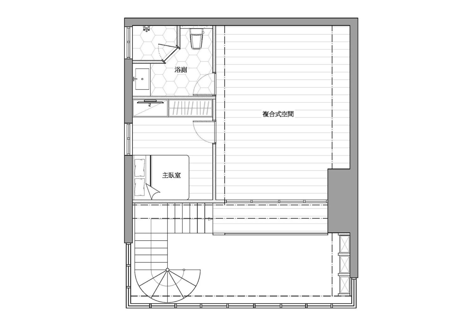
老屋翻新

屋況

22坪

坪數

1房

格局

一鍵同款一鍵同款套用這個風格
空間效果
測一測我適合哪種風格?
loading
loading
loading
loading
相關作品推薦
同公司
同風格·混搭風