算同款報價算同款報價
分享
下載
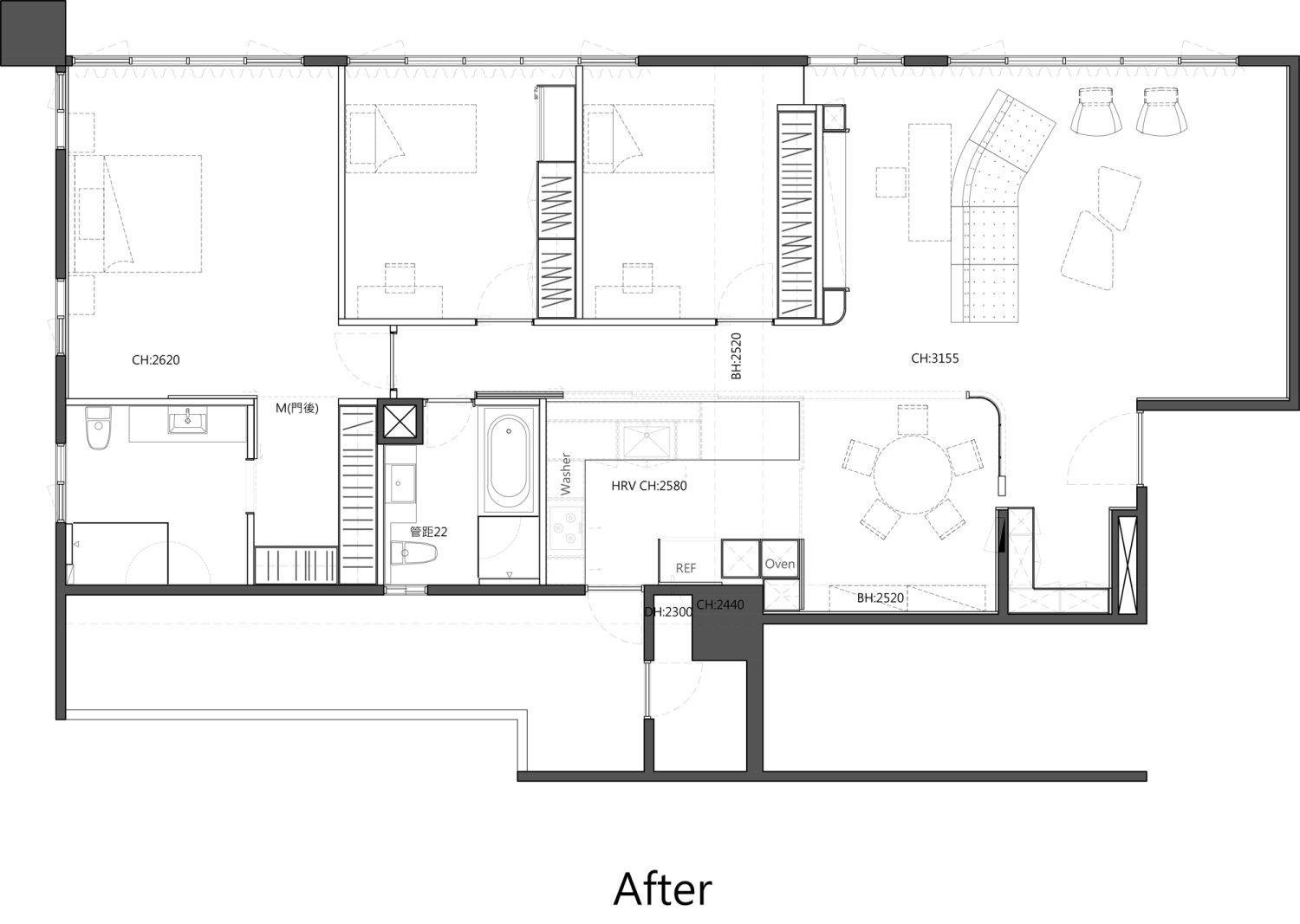
松江O宅

未披露

預算

混搭風

風格

新成屋

屋況

44坪

坪數

3房

格局

均漢設計

59套作品
17篇開箱
提供樣板間參觀
承接局部預算
一年內保固
到府丈量
初步報價
完整圖面繪製
階段檢核
簽訂合約保障
圖面確認
整屋費用:接案120萬起
設計費用:面議
:萬/坪起
接案區域:全臺可接案
請設計師聯絡我
線上諮詢
空間效果
測一測我適合哪種風格?
loading
loading
loading
loading
相關作品推薦
同公司
同風格·混搭風