算同款報價算同款報價
分享
下載
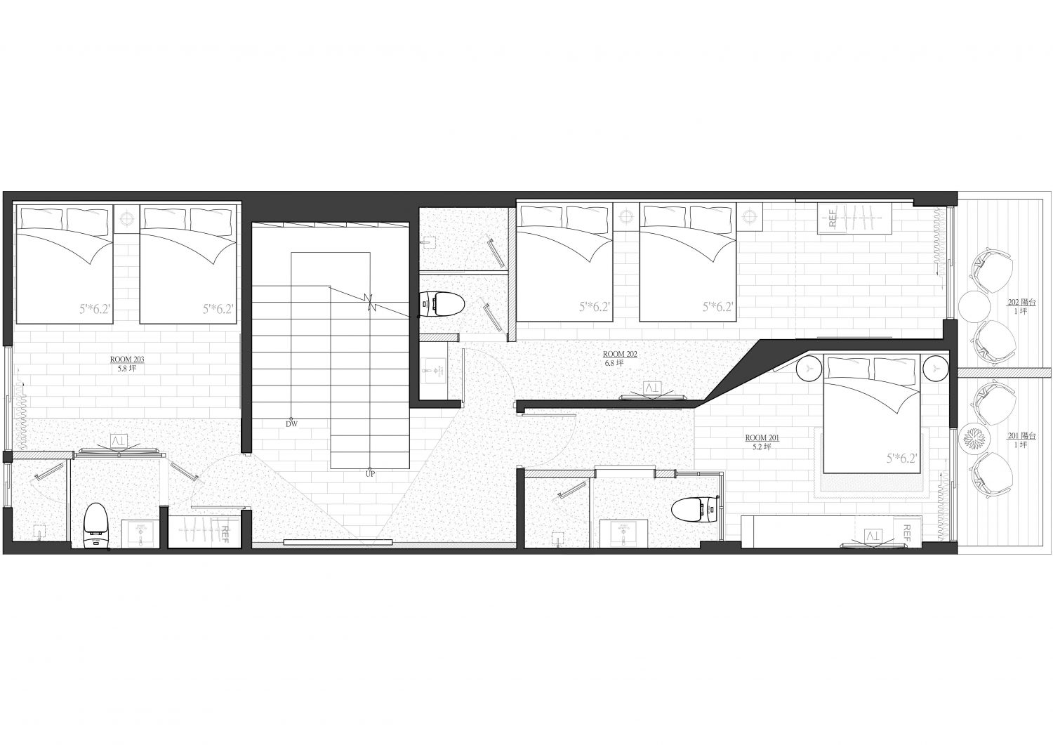
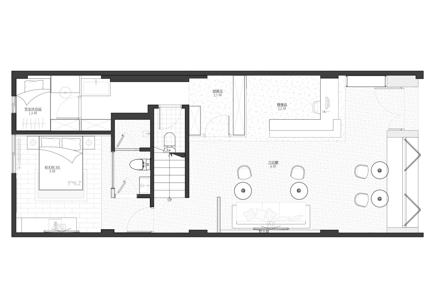
墾丁民宿

未披露

預算

混搭風

風格

老屋翻新

屋況

94坪

坪數

7房

格局

奧立佛 x 株株聯合設計

52套作品
2篇開箱
提供樣板間參觀
一年內保固
專人監工
設計師1對1溝通
到府丈量
生活習慣調查
整屋費用:面議
設計費用:5000 元/坪起
新成屋:10萬/坪起
接案區域:台北市、新北市、桃園市、台南市
請設計師聯絡我
線上諮詢
空間效果
測一測我適合哪種風格?
loading
loading
loading
loading
相關作品推薦
同公司
同風格·混搭風