算同款報價算同款報價
分享
下載
樂寓

未披露

預算

現代風

風格

老屋翻新

屋況

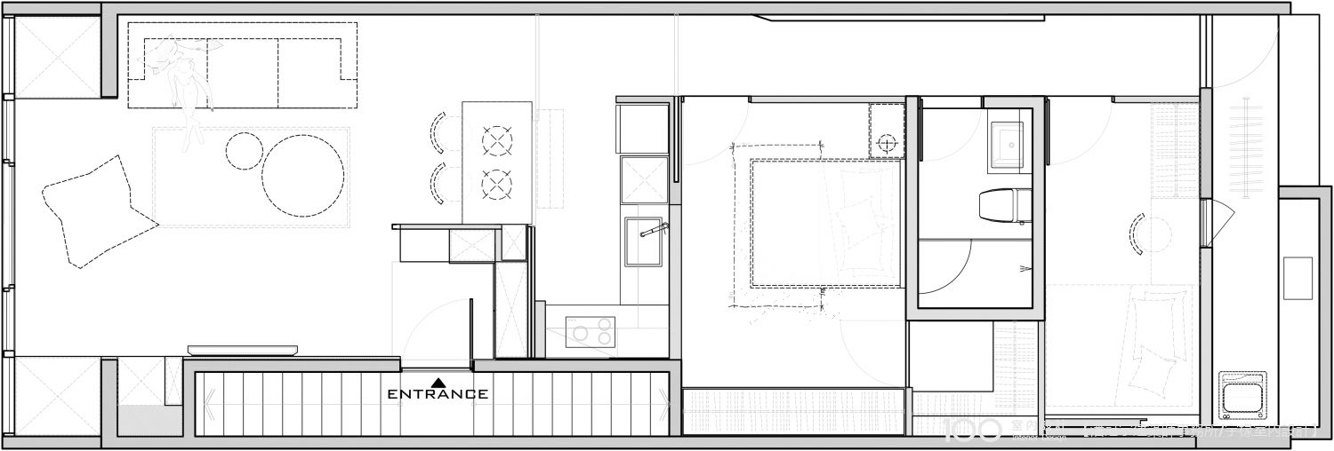
25坪

坪數

2房

格局

潘冠宇建築師事務所/宇椽室內設計

5套作品
承接局部預算
一年內保固
整屋費用:接案100萬起
設計費用:6000 元/坪起
新成屋:7萬/坪起
毛胚屋:10萬/坪起
老屋翻新:10萬/坪起
接案區域:台北市、基隆市、新北市、桃園市
請設計師聯絡我
線上諮詢
空間效果
測一測我適合哪種風格?
loading
loading
loading
相關作品推薦
同公司
同風格·現代風