算同款報價算同款報價
分享
下載
遠方的藍

未披露

預算

混搭風

風格

中古屋

屋況

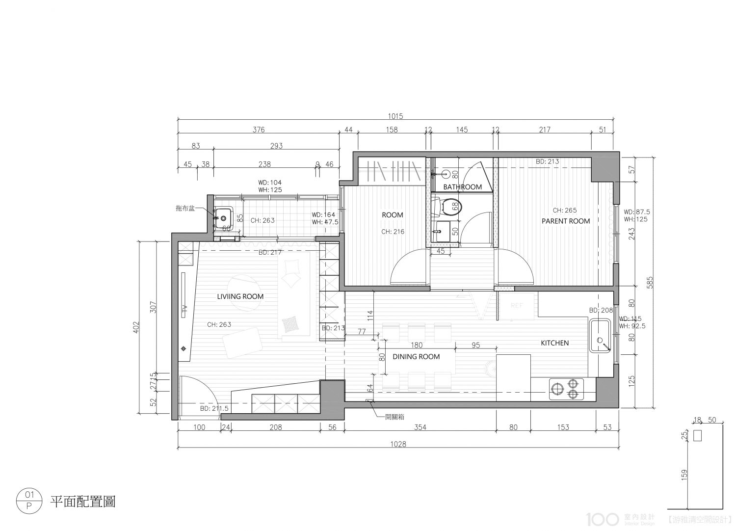
15坪

坪數

2房

格局

游雅清空間設計

6套作品
3篇開箱
整屋費用:面議
設計費用:面議
:萬/坪起
接案區域:台北市
請設計師聯絡我
線上諮詢
空間效果
測一測我適合哪種風格?
loading
loading
loading
loading
相關作品推薦
同公司
同風格·混搭風