一鍵同款一鍵同款套用這個風格
分享
下載
吉光片羽實品屋

未披露

預算

現代風

風格

新成屋

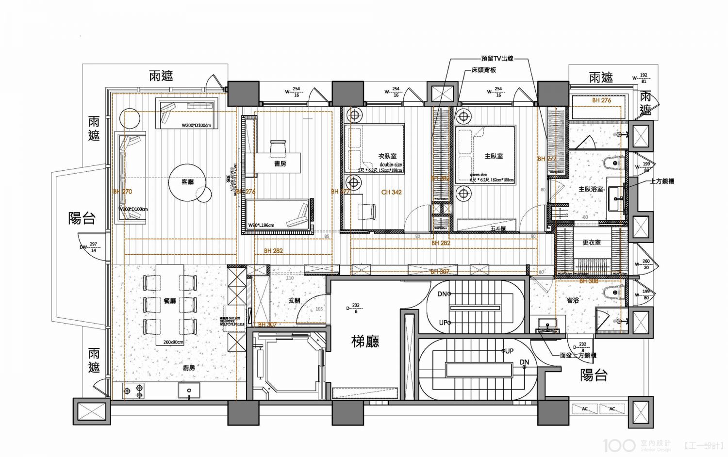
屋況

37坪

坪數

3房

格局

一鍵同款一鍵同款套用這個風格
空間效果
測一測我適合哪種風格?
loading
loading
loading
loading
相關作品推薦
同公司
同風格·現代風