算同款報價算同款報價
分享
下載
Boundary 界

未披露

預算

混搭風

風格

新成屋

屋況

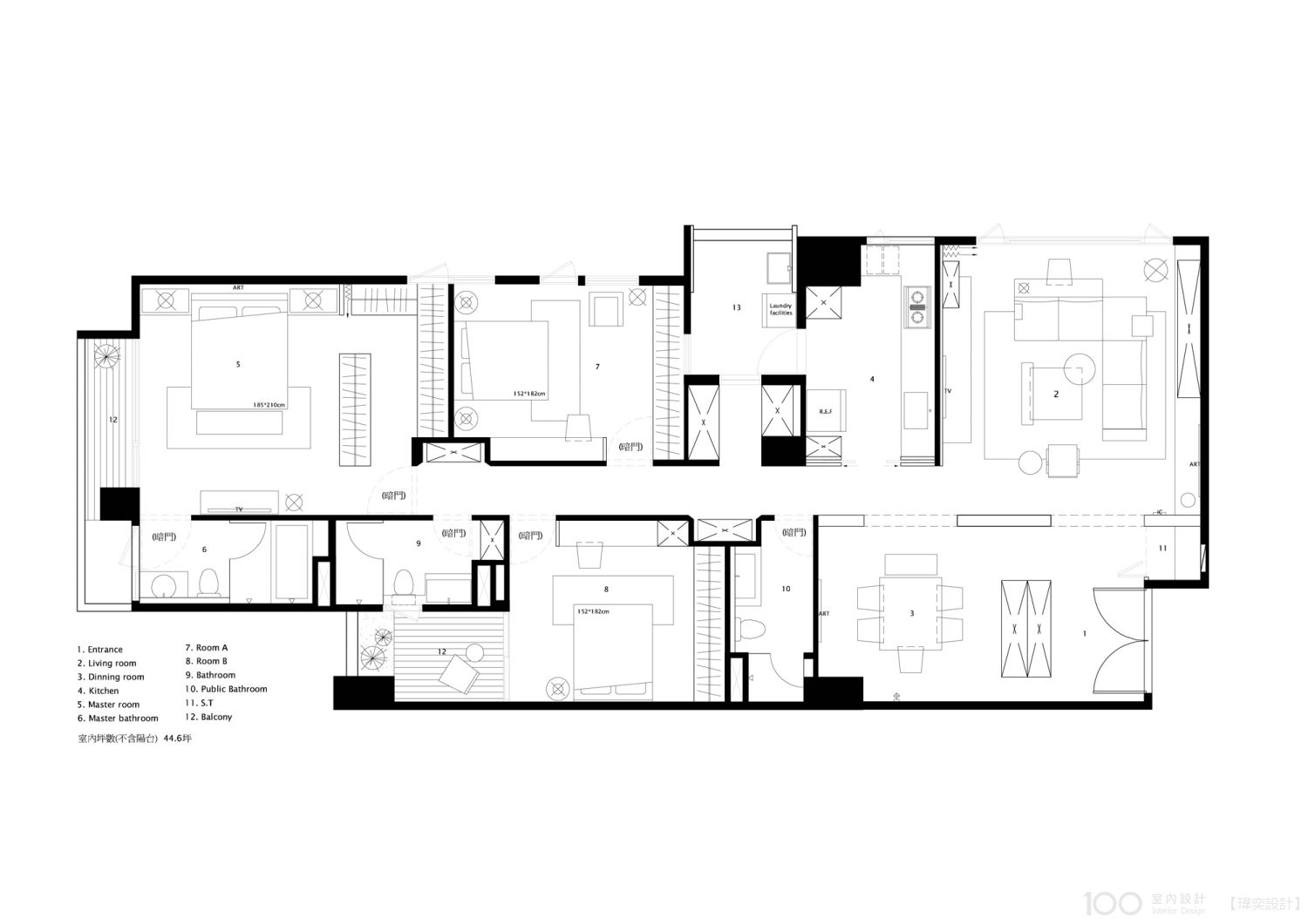
90坪

坪數

3房

格局

瑋奕設計

6套作品
1篇開箱
整屋費用:接案200萬起
設計費用:面議
毛胚屋:15萬/坪起
接案區域:台北市、新北市
請設計師聯絡我
線上諮詢
空間效果
測一測我適合哪種風格?
loading
loading
loading
loading
相關作品推薦
同公司
同風格·混搭風