算同款報價算同款報價
分享
下載
石見

未披露

預算

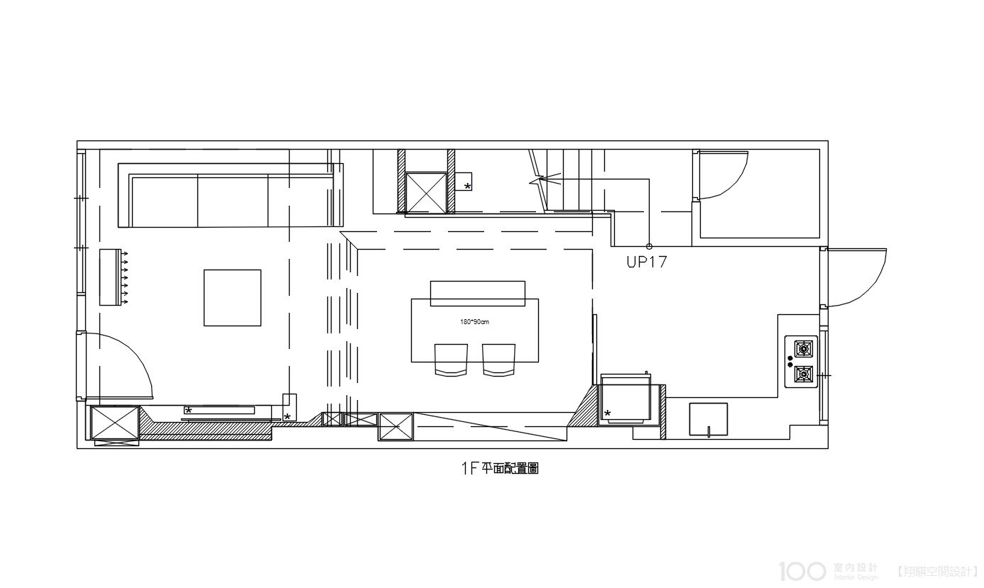
現代風

風格

新成屋

屋況

50坪

坪數

4房

格局

翔騏空間設計

19套作品
2篇開箱
承接局部預算
一年內保固
整屋費用:接案150萬起
設計費用:6000 元/坪起
新成屋:10萬/坪起
接案區域:新竹縣、新竹市、桃園市、新北市
請設計師聯絡我
線上諮詢
空間效果
測一測我適合哪種風格?
loading
loading
loading
loading
相關作品推薦
同公司
同風格·現代風