以窗為牆,散發沉穩氣息同時帶著清透感的家
日式現代
風格
自地自建
屋況
150坪
坪數
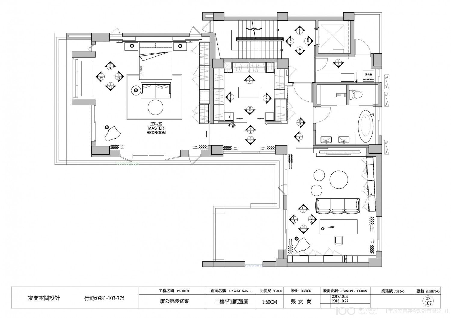
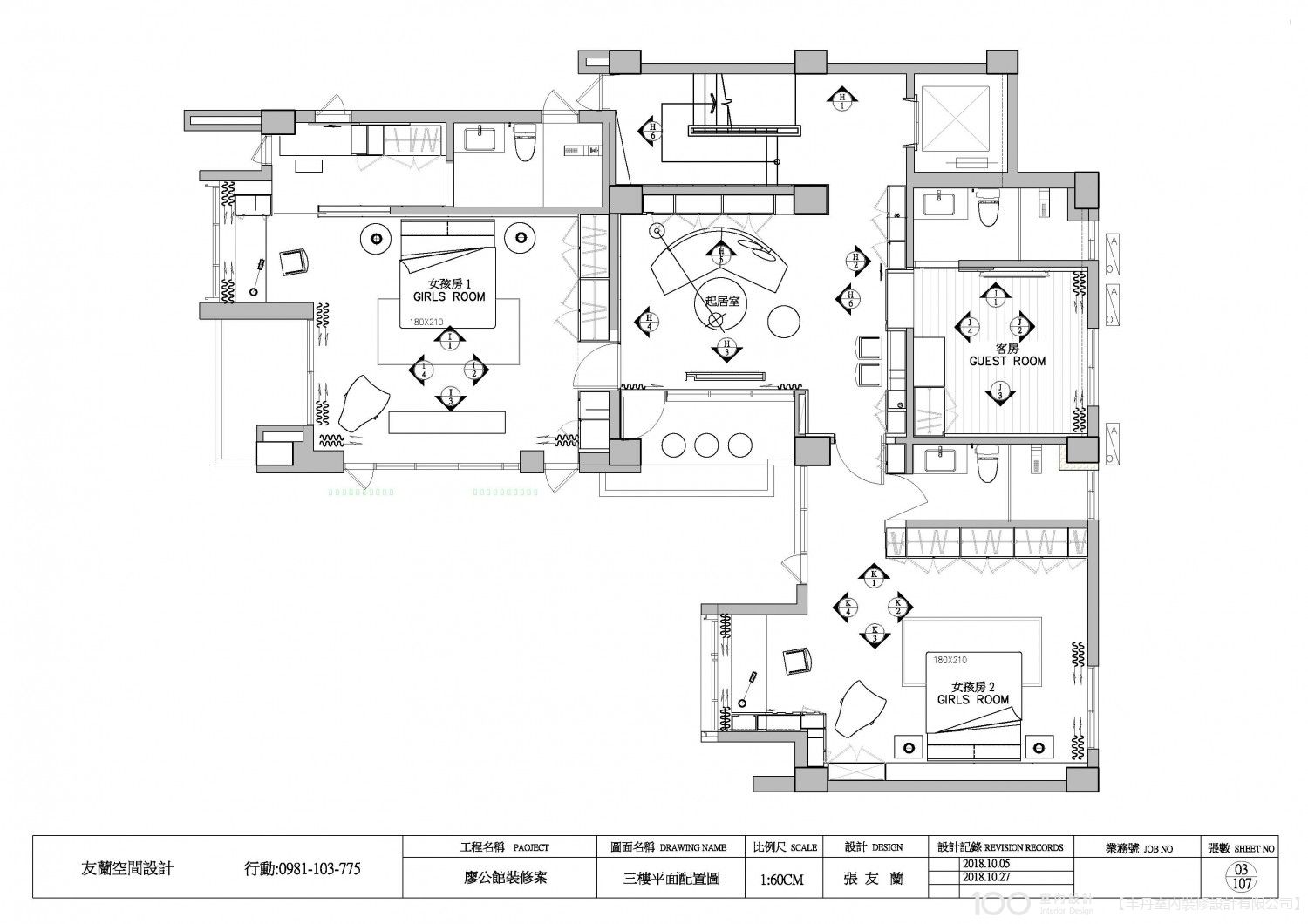
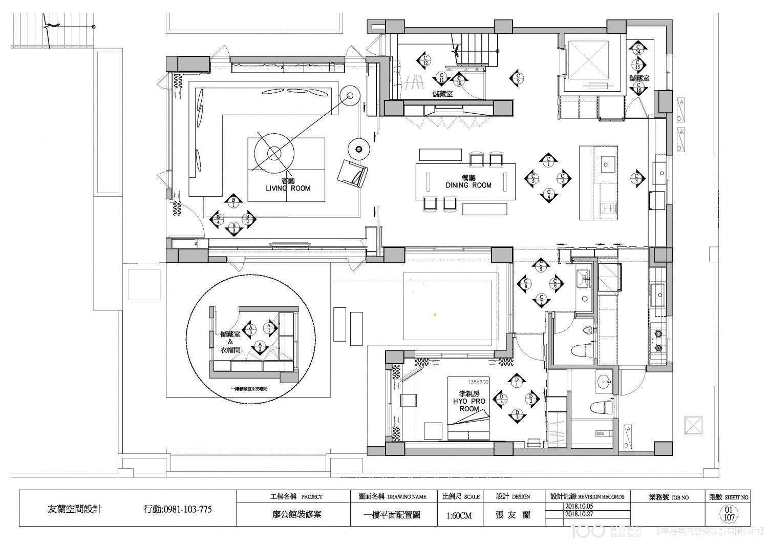
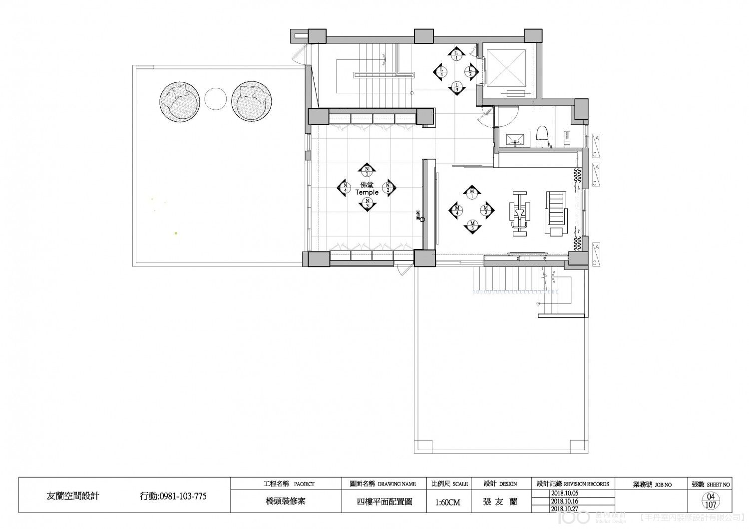
5房2廳6衛
格局
費用分佈
| 明細 | 費用金額 |
|---|---|
| 設計費 | 40萬 |
| 施工費 | 1210萬 |
設計方案








屋主訴求
設計思路



服務範圍
| 服務 | 說明 |
|---|---|
| 基礎工程 | 全屋保護:全屋PC板、1分夾板 水電配線:裝潢部分新增線路 木作工程:天花、壁面造型、櫃體收納訂製等 泥作工程:沙發背牆貼岩石板 油漆工程:天花板、牆面塗裝 |
| 監工服務 | 工程款10% 項目主管專人監工、每天在line群組匯報工程進展、協調工班配合 |
| 裝修保固 | 保固1年 |
*服務範圍屬定製化服務,以設計師和業主洽談方案為準
建材配備
| 品類 | 品牌 | 空間 |
|---|---|---|
| 實木皮 | 科彰 | 客、餐廳等 |
| 實木皮 | 豐渥 | 客、餐廳等 |
| 實木皮板 | 立大 | 客、餐廳等 |
| 美耐板 | 富美家 | 餐廚櫃體 |
| 矽酸鈣板 | 日本麗仕 | 天花 |
| 石材 | 天然大理石 | 客、餐廳等 |
| 系統櫃 | 櫻花 | 櫥櫃 |
| 衛浴設備 | TOTO | 浴室 |
| 油漆 | 得利 | 壁面 |
