算同款報價
格局實景圖
客廳(3)
餐廳(1)
衛浴(1)
臥室(1)
玄關(2)
其他(4)
兒童房(2)
未來20年最重要的住宅精神
未披露
預算
工業風
風格
新成屋
屋況
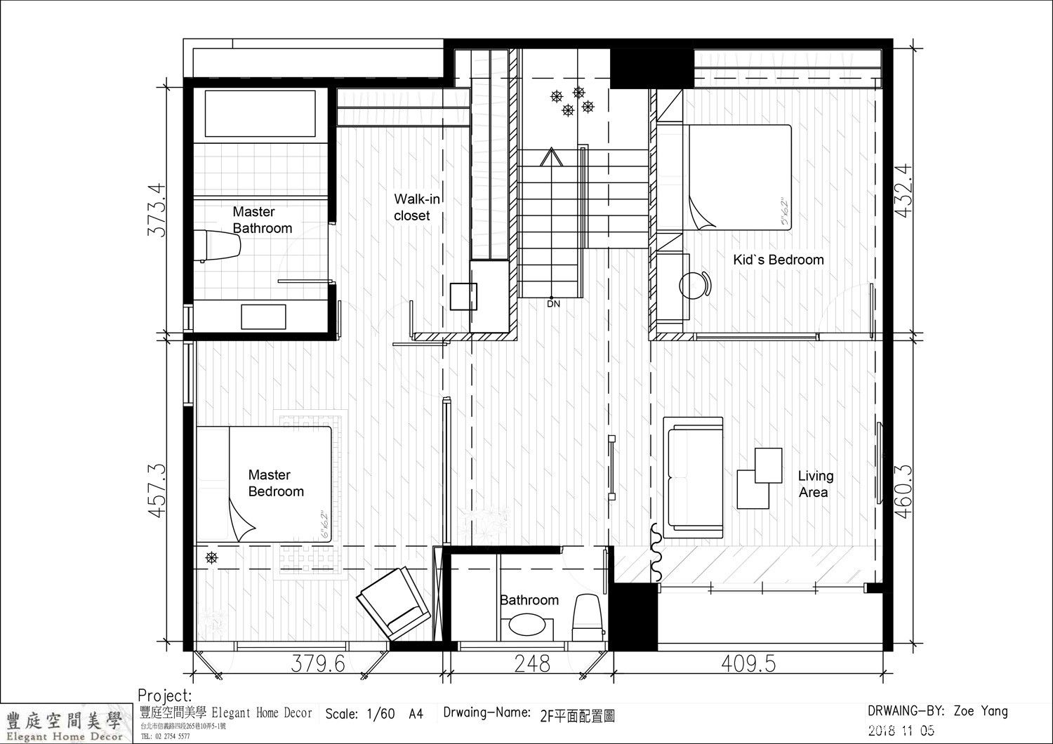
52坪
坪數
3房
格局
豐庭空間美學
5套作品
1篇開箱
提供樣板間參觀
承接局部預算
一年內保固
整屋費用:
接案100萬起
設計費用:
5000 元/坪起
新成屋:
4萬/坪起
老屋翻新:
8萬/坪起
毛胚屋:
10萬/坪起
接案區域:
台北市、新北市、桃園市
請設計師聯絡我
線上諮詢
空間效果
測一測我適合哪種風格?
相關作品推薦
同公司
同風格·工業風