算同款報價
格局實景圖
廚房(1)
客廳(1)
餐廳(2)
衛浴(1)
其他(4)
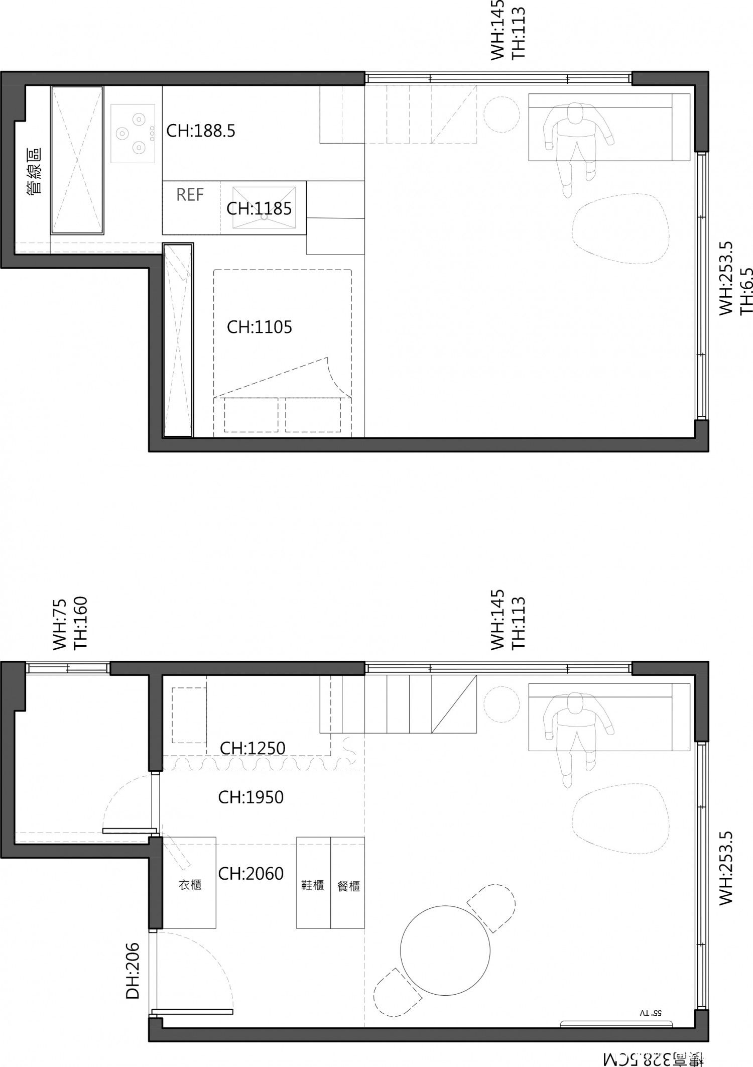
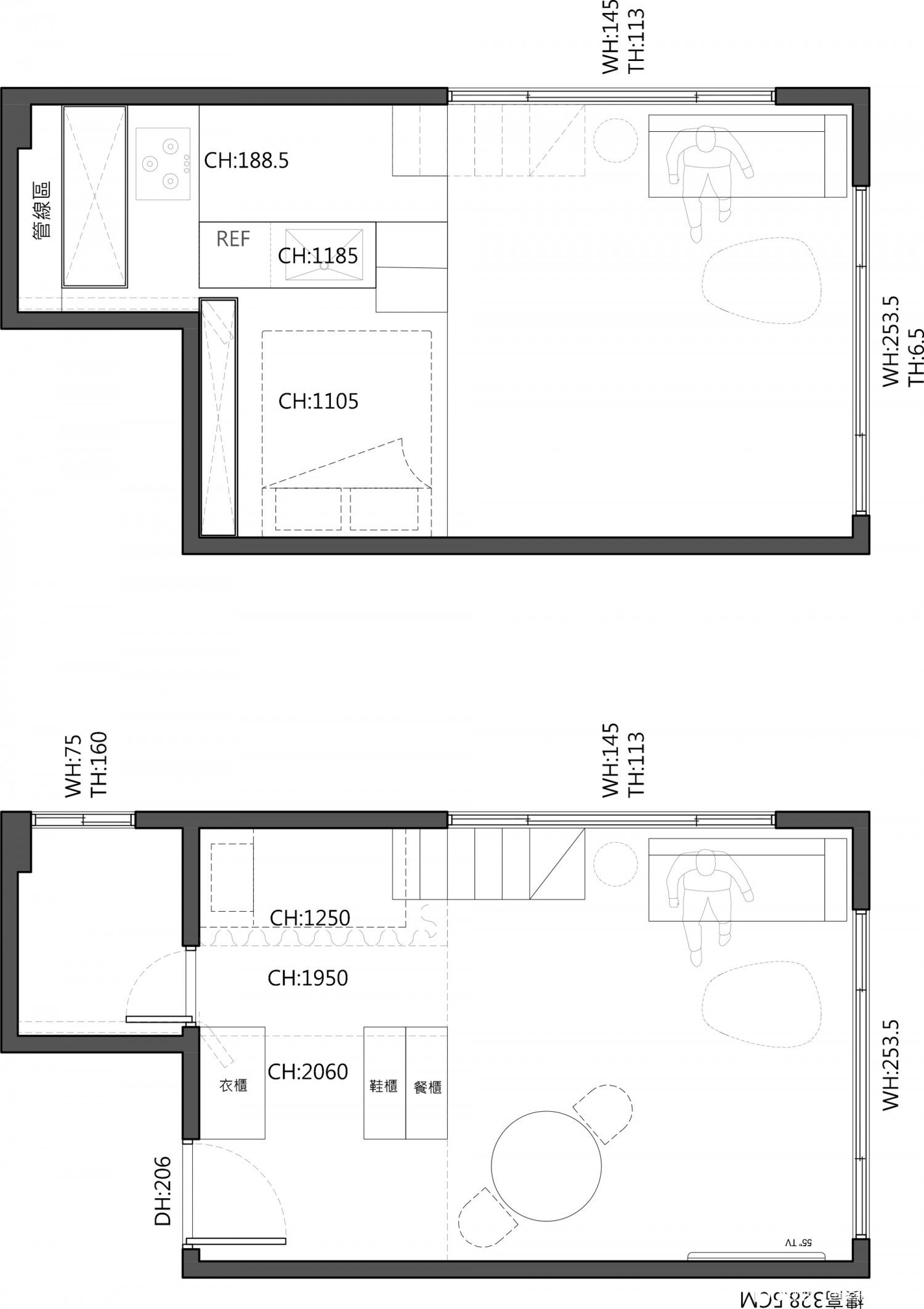
信義L宅
未披露
預算
現代風
風格
中古屋
屋況
12坪
坪數
1房
格局
均漢設計
59套作品
17篇開箱
提供樣板間參觀
承接局部預算
一年內保固
到府丈量
初步報價
完整圖面繪製
階段檢核
簽訂合約保障
圖面確認
整屋費用:
接案120萬起
設計費用:
面議
:
萬/坪起
接案區域:
全臺可接案
請設計師聯絡我
線上諮詢
空間效果
測一測我適合哪種風格?
相關作品推薦
同公司
同風格·現代風