套用這個風格
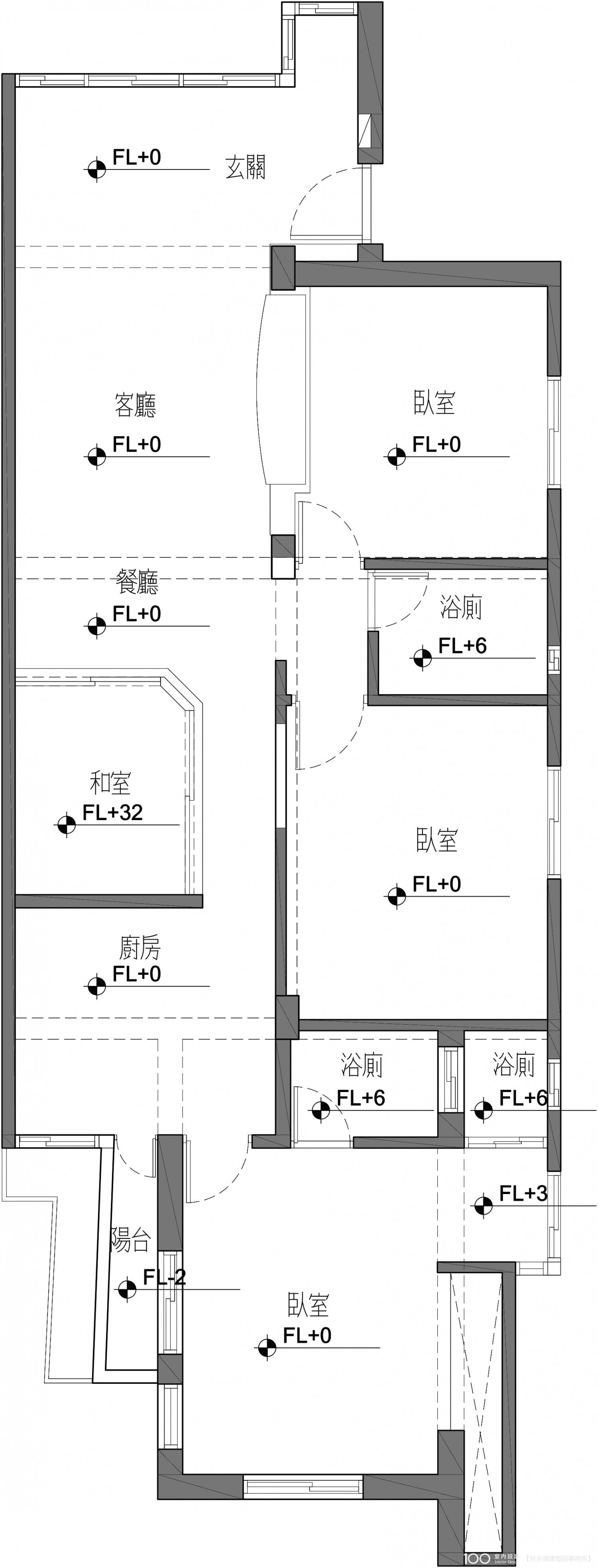
格局實景圖
客廳(7)
餐廳(3)
衛浴(1)
廚房(1)
臥室(3)
陽臺(1)
其他(2)
知間設計
添加LINE
追蹤FB
Daan Chou Apartment 02
未披露
預算
現代風
風格
中古屋
屋況
26坪
坪數
3房
格局
套用這個風格
空間效果
測一測我適合哪種風格?
相關作品推薦
同公司
同風格·現代風