算同款報價算同款報價
分享
下載
白色戀人

未披露

預算

古典風

風格

新成屋

屋況

80坪

坪數

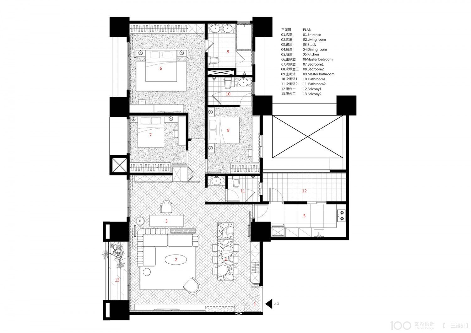
2房2廳2衛

格局

二三設計 23Design

134套作品
9篇開箱
一年內保固
風格測驗
生活習慣調查
完工保固
驗收交屋
設計師1對1溝通
深度傾聽需求
整屋費用:接案300萬起
設計費用:8000 元/坪起
新成屋:15萬/坪起
毛胚屋:25萬/坪起
接案區域:台北市、桃園市、新北市
請設計師聯絡我
線上諮詢
空間效果
測一測我適合哪種風格?
loading
loading
loading
loading
相關作品推薦
同公司
同風格·古典風