設計方案

屋主訴求
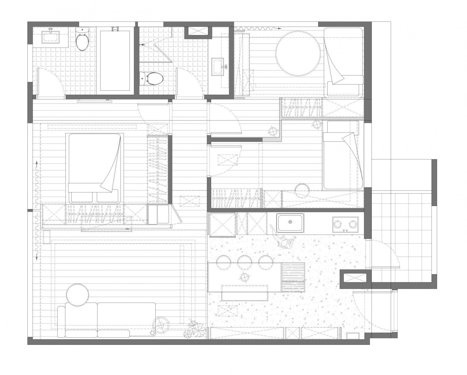
1. 開放式的公共空間
2. 黑與白的色系
3. 以不大動隔間為主
4. 喜歡簡單有質感的設計
5. 要有儲藏室以及酒櫃
設計思路
1. 將封閉廚房改為開放式,增加大中島
2. 設計玄關與餐廚區的櫃體,兼具收納與展示功能
3. 利用沖孔網隔屏保護隱私,保持空間通透
4. 增設黑色電器櫃,結合紅酒櫃於餐桌設計中
設計亮點
1. 公共區域全為開放式設計,提升互動性
2. 特殊塗料與大理石薄板石的搭配,增加空間層次
3. 姊妹房的動線改良,提升空間感
4. 精緻的金色五金把手與天藍色空間的搭配,增添活潑感