算同款報價算同款報價
分享
下載
汐止L宅

未披露

預算

日式風

風格

中古屋

屋況

20坪

坪數

4房

格局

好人設計

17套作品
4篇開箱
整屋費用:接案150萬起
設計費用:面議
新成屋:6萬/坪起
老屋翻新:8萬/坪起
接案區域:台北市、新北市
請設計師聯絡我
線上諮詢

設計方案

設計方案

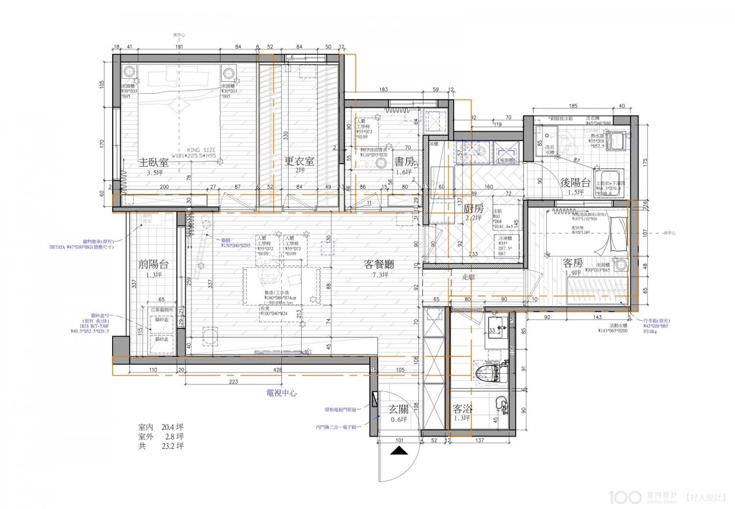
屋主訴求屋主訴求

1. 希望設計能符合自己和貓咪的生活需求。 2. 不做天花板,增加空間感。 3. 貓砂櫃要擺在前陽台,貓樹靠窗。 4. 需要獨立更衣室,並隱藏客廳雜物電器。 5. 廚房電器必須放置在廚房內,不希望放在客廳。

設計思路設計思路

1. 將客廳設計成無沙發的空間,符合屋主的生活需求。 2. 設計不鏽鋼貓砂箱,並在前陽台設置,方便貓咪使用。 3. 使用大型磁磚,減少清理浴室的麻煩,並挑選進口六角磚作為特色設計。 4. 設計師根據屋主的需求,調整空間格局,從三房兩廳調整為四房兩廳一衛。

設計亮點設計亮點

1. 貓砂櫃的設計兼具美觀與實用性,並考量貓咪的活動需求。 2. 客廳的設計不放沙發,讓空間更開放且靈活。 3. 使用無印良品的組合家具,提升整體設計的簡約感。 4. 浴室的磁磚設計選擇六角形,增添視覺特色,且減少清理麻煩。
空間效果
測一測我適合哪種風格?
loading
loading
loading
loading

作品開箱

作品開箱
data.title

一人一猫,這就是我夢想中的極簡生活宅(文末附購物清單)

2020-02-28

相關作品推薦
同公司
同風格·日式風