設計師陳佳儒&羅德智總監從業11年中國科技大學 室內設計系碩士班
老屋重生 × 工業風的暖心寵物宅
工業風
風格
老屋翻新
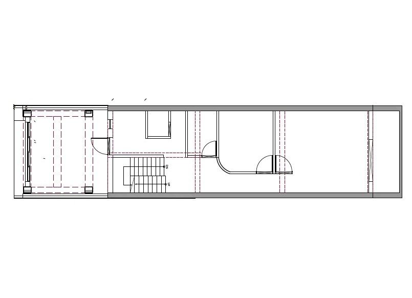
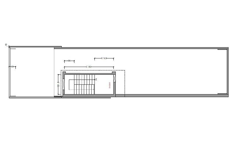
屋況
40坪
坪數
4房2廳2衛
格局
費用分佈
| 明細 | 費用金額 |
|---|---|
| 設計費 | 60萬 |
| 施工費 | 340萬 |
設計方案






屋主訴求
設計思路




服務範圍
| 服務 | 說明 |
|---|---|
| 丈量服務 | 免費 |
| 基礎工程 | 1.拆除:全室舊有隔間、天花與地坪清運。 2.結構/外觀:局部補強,外牆白色鐵皮拉皮更新。 3.防水:屋頂、外牆與衛浴全面防水。 4.泥作:衛浴貼磚、一樓木紋磚、地坪找平。 5.水電:全室水電與弱電重新配置。 6.天花:輕鋼架天花+鐵網造型整合管線。 7.木作/鐵件:圓弧牆面、櫃體、鐵件隔間與跳台。 8.油漆:全室油漆更新,局部清水模塗料。 9.門窗:部分鋁窗與門片更新。 |
| 監工服務 | 請洽詢設計公司 項目主管專人監工、每天在line群組匯報工程進展 |
| 裝修保固 | 保固1年 本工程自正式驗收之日起保固一年,於保固期內如確定係因施工不良或材質不佳而有損壞者,乙方應負修復之責,但下列情事不在此限。 (一)非一般使用情況之人為因素所议。 (二)遭原建築體及其設施所波及者。 (三)不可抗力之原因導致之損壞。 |
*服務範圍屬定製化服務,以設計師和業主洽談方案為準
施工過程

作品開箱

既粗獷又軟Q!50年老透天拉皮大翻身,工業風時尚貓宅藏了驚人機能
2025-11-10