算同款報價
格局實景圖
玄關(1)
客廳(4)
廚房(1)
臥室(6)
衛浴(1)
餐廳(2)
其他(3)
永康-林公館
101萬
預算
混搭風
風格
中古屋
屋況
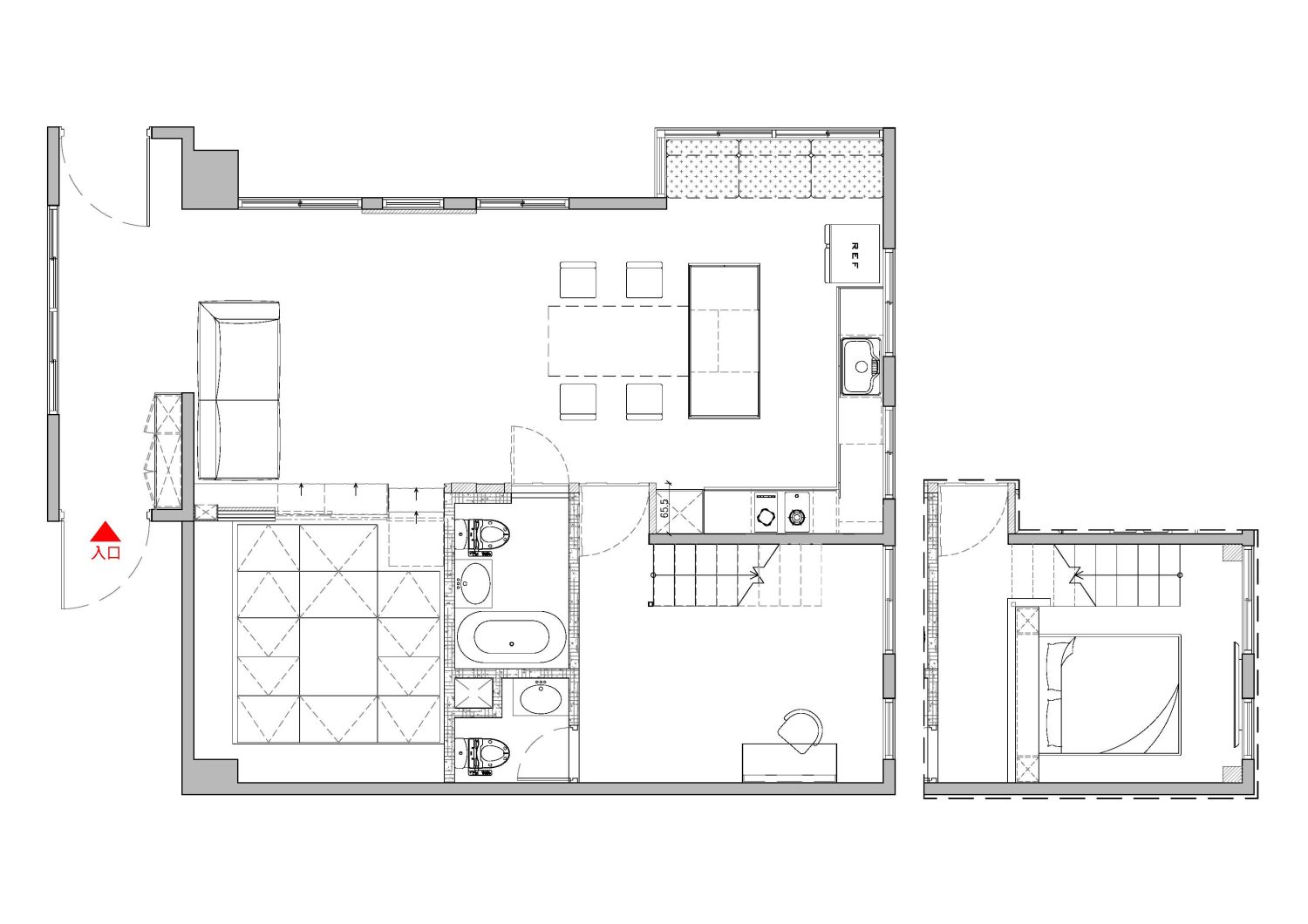
23坪
坪數
2房1廳2衛
格局
設計理念:
第一次進到這個案件室內時,屋內處處是壁癌漏水與白蟻狀況還有線路老舊的問題,前置作業做了漏水的檢測與線路查檢,還有除蟲及拆除花了不少時間。 再一個個階段討論的過程中,共識與目標越來越明確,做了蠻多特別的巧思,因應業主希望電視沒有使用時可以盡量不占空間,保持整體空間視覺上的通透感,而誕生出來的滑動電視,與小空間內的收納要題,地櫃與樓梯櫃及木作天花板上方收納空間。
宅調空間製作
6項設計大獎
34套作品
穩定合作工班
一年內保固
設計師1對1溝通
收納規劃
3D透視圖
完整圖面繪製
完工保固
整屋費用:
接案120萬起
設計費用:
5000 元/坪起
新成屋:
6萬/坪起
自地自建:
20萬/坪起
老屋翻新:
8萬/坪起
接案區域:
六都可接案
請設計師聯絡我
線上諮詢
空間效果
測一測我適合哪種風格?
相關作品推薦
同公司
同風格·混搭風
同預算 · 101萬