套用這個風格
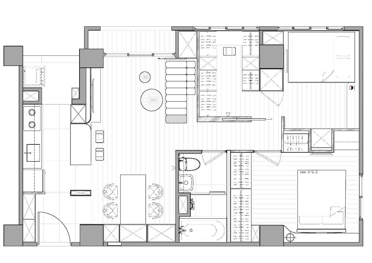
格局實景圖
客廳(2)
其他(2)
玄關(2)
廚房(1)
餐廳(1)
臥室(3)
衣帽間(2)
衛浴(1)
生活剖面
追蹤FB
破界重組空間
200萬
預算
古典風
風格
老屋翻新
屋況
23坪
坪數
2房2廳1衛
格局
套用這個風格
空間效果
測一測我適合哪種風格?
相關作品推薦
同公司
同風格·古典風
同預算 · 200萬