設計方案

屋主訴求
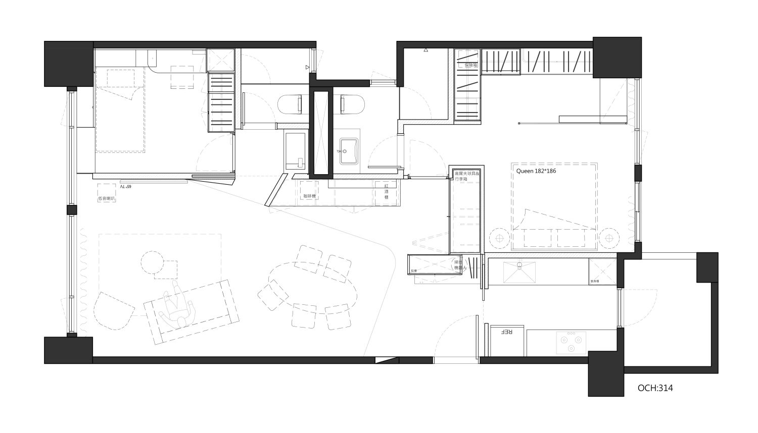
1. 希望在小坪數內創造開放而不擁擠的居住空間。
2. 需要設計一個能夠品酒的吧台,讓家裡有小酒館的氛圍。
3. 希望使用自然材料,並保持空間的精緻感。
設計思路
1. 利用異材質分界創造空間感,使用木作、石紋和水泥等多種材料。
2. 設計吧台與餐桌連接,提升社交互動的空間使用。
3. 在主臥室使用木質屏風隔出半開放式更衣間,兼顧隱私與空間感。
設計亮點
1. 曲弧線條的設計使不同材質的過渡自然流暢,增強空間延伸感。
2. 各種材質的運用,從玄關到吧台區都保持了一致的風格。
3. 充滿奢華感的孔雀綠沙發與自然材料的搭配,形成強烈的視覺對比。
4. 玄關櫃的設計取代傳統牆面,增強空間的穿透感。