拍张客圖,AI極速换装,1分鐘出圖
平日醫院工作繁忙的屋主,希望回到家之後能完全放鬆、沉澱心情,因此希望新家能擁有如精品飯店般的便利機能與空間質感,並且能以簡約、灰色調的風格為主軸。在與樂湁設計接洽過後,認為設計師所提出的整體配色與材質方案最為符合,因而開啟了這次合作的契機。
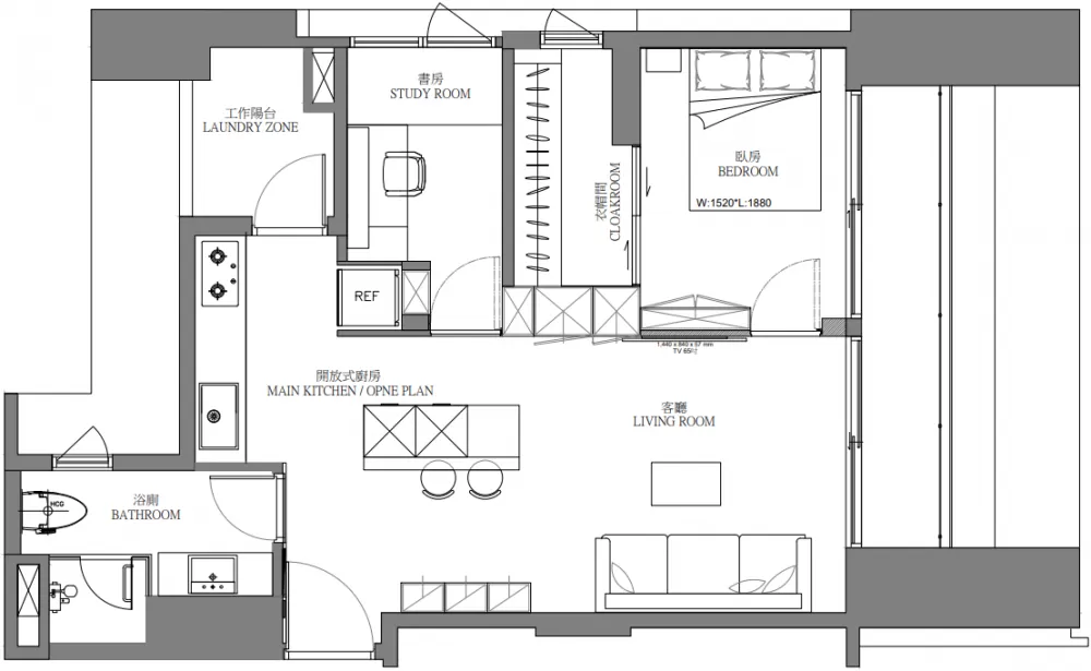
平面格局配置&設計規劃
由建商所配置的原始格局,自門口進到室內後會看到一道區隔出廚房的牆壁,但對屋主而言反而形成壓迫感,遂於客變階段加以退除。考量冰箱缺乏適當的擺放位置,僅能置於走道上,不但干擾視覺,行走動線也不夠順暢,所以將公共區域和房間的這片牆面予以整合也是本次規劃重點。因應屋主獨身居住,使用兩套衛浴的需求性不大,於是把主臥室裡的衛浴改為衣帽間。另一間臥室則規劃成工作書房,有需要時亦可化身客房。
至於風格,則以灰、黑、白等中性色調為主,配搭色澤較濃郁的木紋,打造內斂沉靜的現代單身宅。

改造前平面圖

改造後平面圖

完整裝修工具包(清單+話術+模板)已為你準備好!
客廳區
在空間坪數有限且希望維持開闊乾淨的訴求下,不另外設置獨立玄關,僅在大門進來的右手邊加上一座懸空櫃體,側邊局部挖空可隨手放置信件或鑰匙。為與灰色調特殊塗料相呼應,玄關櫃刻意選擇銀灰色鍍鈦材質,使沙發後方的這道立面顏色協調看起來更寬敞,但因著材料的不同而有層次變化。
貼覆木皮的電視牆面中藏了通往臥室和書房的暗門,也有收納音響、擴大機、遊戲機等視聽設備的櫃子,靠近天花板的部分則改用鏡面,將空間再拉高、放大。天花板搭配LED條燈設計,便於調整色溫和明暗度,隨心情轉換成適合看電影、聽音樂或小酌的情境。



廚房中島區
屋主不希望區域劃分過於明確,導致空間受到壓縮,因此透過由霧面義大利大板磚形構的中島吧檯取代餐桌,同時也能在中島下方規劃出炊飯器電器收納櫃。有鑑於建商原本附贈的廚具和整體空間的視覺頗為和諧,遂沿用保留,並另外增設灰色上櫃,且將特殊漆延伸至客浴門片和遮掩電源開關箱的木作封板上,創造簡潔一致的空間立面。



主臥
將原有的主浴規劃為一間精巧的更衣室,衣櫃的吊桿、抽屜、層板尺寸均依照屋主各種衣物和配件訂製,並利用灰玻拉門形成區隔,讓睡眠區保持最舒適的尺度。 以灰色調鋪陳的寢臥區域中,簡單於樑下加入燈帶修飾,一來可削減樑體的壓迫感,二來亦有助柔化空間氛圍。


書房/客房
一間專屬且獨立的工作書房,讓屋主在家時仍能靜心處理工作事務或閱讀,並可妥善收納手邊藏書。書桌旁的櫃體正是取自廚房放置冰箱的內凹處打造而成,充分運用每一吋空間。窗邊則搭配了臥榻設計,方便親朋好友來訪時留宿。


裝修後記
面對空間坪數較小的住宅,很多人不免擔心當填入想要的機能後,生活會不會太侷促?以這間房子為例,經由設計師巧手規劃、抓出最適切的空間比例,包括廚房中島區與主臥皆預留了足夠的走道寬度,不論是走動或取用物品都能保有舒適感。







