一鍵同款一鍵同款套用這個風格
分享
下載
童趣繽紛宅
台中市
馬卡龍
繽紛
柔和
北歐風
輕裝修
吧台
粉紅色
綠色
莫蘭迪色
小坪數
木紋
白色
可愛
系統櫃
一鍵同款一鍵同款套用這個風格

馬卡龍色調妝點出童趣繽紛,北歐宅清新舒適

北歐風

風格

新成屋

屋況

24坪

坪數

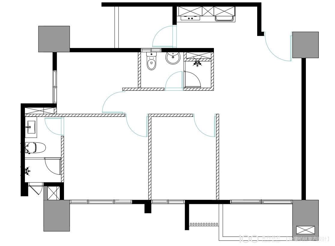
3房2廳2衛

格局

成員2大人

費用分佈

總費用 80萬單坪4.7萬
我家裝修報價我家裝修報價
明細費用金額
設計費5萬
施工費75萬

設計方案

設計方案
loading
Before
loading
After

屋主訴求屋主訴求

●廚房需隔絕油煙 ●想要有個吧檯 ●希望家裡是北歐風,並帶有綠色調

設計思路設計思路

●客廳、餐廳採開放式設計,不僅增加自然採光與通風,也強化家人間的互動性。 ●淺色調加入莫蘭迪色系點綴,創造柔和繽紛感,整體舒適又療癒。
空間效果
測一測我適合哪種風格?
loading
loading
loading
1.玄關櫃結合穿鞋椅、汙衣櫃設計,滿足收納機能之外,穿脫鞋子也更便利。 2.櫃子中間的開放區,可以擺放小物,妝點空間。 3.櫃體採懸空設計,減少壓迫感,也便於打掃與收放鞋子。

服務範圍

服務說明
丈量服務3000元
提案服務免費 三套平面圖、一套3D渲染圖
基礎工程全屋保護:塑膠瓦楞板、夾板 水電工程:裝修線路 木作工程:木作天花板 系統櫃工程 :全部櫃體
裝修保固保固1年 施作範圍

*服務範圍屬定製化服務,以設計師和業主洽談方案為準

施工過程

施工過程
系統工程
全室櫃體
相關作品推薦
同公司
同風格·北歐風
同預算 · 80萬