一鍵同款一鍵同款套用這個風格
分享
下載
發現之旅
台北市
自然色調
輕爽北歐風
MUJI
無印元素
一鍵同款一鍵同款套用這個風格

輕北歐X留白設計,MUJI療癒退休宅

北歐風

風格

老屋翻新

屋況

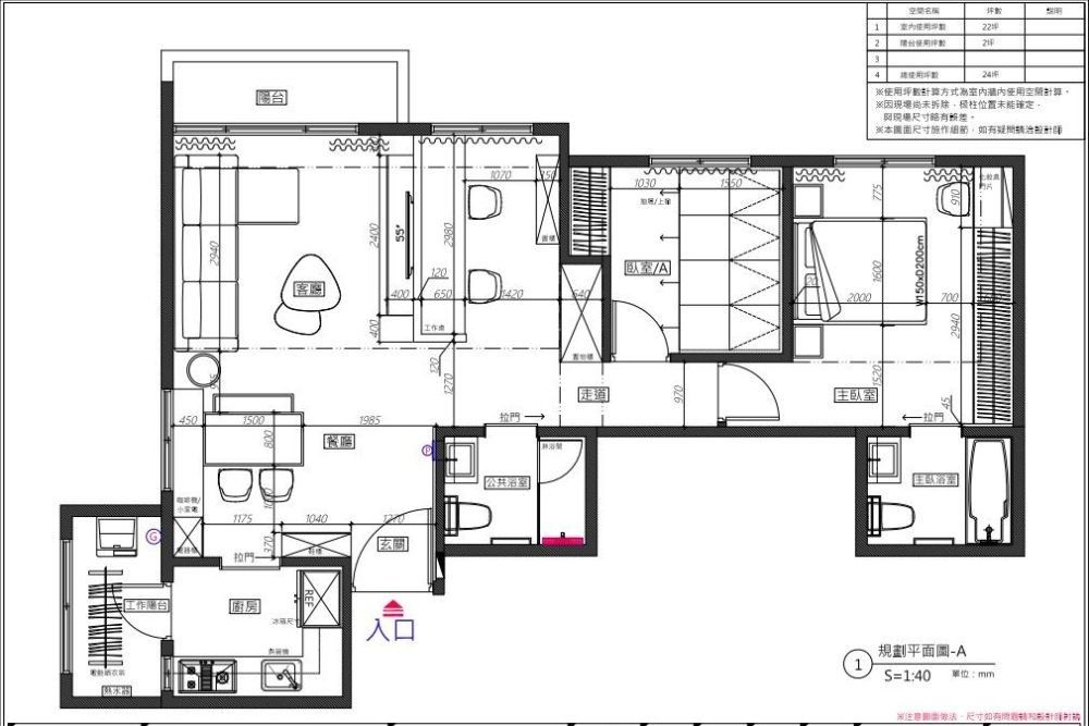
25坪

坪數

2房2廳2衛

格局

成員2大人

費用分佈

總費用 250萬單坪10萬
我家裝修報價我家裝修報價
明細費用金額
設計費12.5萬(依坪數計算,實際費用詳洽設計公司)
施工費施工費與總實際費用詳洽設計公司

設計方案

設計方案
loading
Before
loading
After

屋主訴求屋主訴求

● 打造清新簡約風格,成為專屬自己的療癒居所 ● 退休後希望生活步調放慢,空間氛圍舒適放鬆 ● 喜歡留白感設計,不要過多裝飾與複雜線條 ● 重視自然採光與通風,讓光線能自在流動 ● 期待居家實用耐用,日常維護輕鬆無負擔

設計思路設計思路

● 從基礎工程全面翻新,確保老屋結構與安全性 ● 以簡約即療癒為核心,運用留白放大空間感受 ● 融入MUJI純粹實用精神,形塑安定生活節奏 ● 強化採光動線規劃,讓光與風自然穿梭全室 ● 捨棄多餘裝飾細節,回歸居住本質與長久耐看
空間效果
測一測我適合哪種風格?
loading
loading
loading
loading
● 極簡線條鋪陳玄關,第一眼即展現清爽秩序感 ● 穿衣鏡結合鞋櫃配置,外出整理動線順暢自然 ● 中段平台銜接餐廚區,隨手置物與收納更便利 ● 雙側機能清楚分區,維持視覺平衡不顯雜亂 #玄關設計 #高收納機能 #極簡風格 #進門收納機能規劃 #鞋櫃整合 #茶色穿衣鏡

服務範圍

服務說明
提案服務免費
基礎工程老宅拆除重健:木作、櫃體、地板、天花等 全屋保護:全屋防潮佈、塑膠瓦楞板 水電更新:部分管線更新、廚房、衛浴線路強化 木作工程:天花、櫃體收納訂製等 泥作工程:局部鋪磚 油漆工程:牆面塗裝
監工服務工程款8-10%
裝修保固(保固1年)

*服務範圍屬定製化服務,以設計師和業主洽談方案為準

作品開箱

作品開箱
data.title

MUJI式療癒住宅!25坪輕北歐風留白設計,實現屋主的療癒日常

2025-06-09

相關作品推薦
同公司
同風格·北歐風
同預算 · 250萬