設計師林嘉慶從業21年中國科技大學
細膩溫潤,以自然光影打造療癒人心的無印日常
日式無印
風格
新成屋
屋況
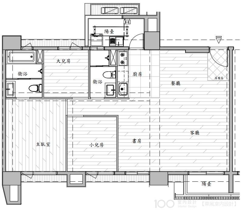
30坪
坪數
4房2廳2衛
格局
費用分佈
| 明細 | 費用金額 |
|---|---|
| 設計費 | 10萬(製圖規劃) |
| 施工費 | 128萬(包含各項工程施作以及監工管理費用(8萬)) |
| 其他 | 22萬 |
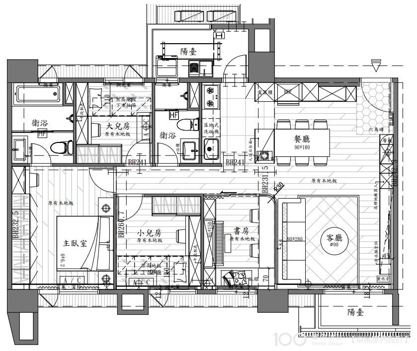
設計方案


屋主訴求
設計思路


服務範圍
| 服務 | 說明 |
|---|---|
| 丈量提案 | 2萬(可併入工程款) 一套平面圖方案 |
| 基礎工程 | 全屋保護:全屋塑膠瓦楞板,夾板 水電工程:燈飾水電線路 木作工程:木皮,天花板,隔屏,電視牆,系統櫃 泥作工程:電視牆清水模 油漆工程:天花板,隔屏 窗簾工程:窗簾,窗紗,調光簾 |
| 監工服務 | 8萬(含管理) 按總工程費X5%收取 |
| 裝修保固 | 保固1~5年(木作工程保固1年系統板材保固5年) 木作工程,系統板材,五金,燈泡 |
*服務範圍屬定製化服務,以設計師和業主洽談方案為準
施工過程
建材配備
| 品類 | 品牌 | 空間 |
|---|---|---|
| 系統板 | 德國EGGER | 餐廚 |
| 燈具 | BMW13-0802 | 玄關 |
| 電視牆 | 樂土 | 客廳 |
| 木皮 | 全宏 | 書房 |
| 吊燈 | BMW13-0464 | 餐廳 |
| 中島檯面 | SAMSUNG-SH428 | 廚房 |
| 床頭牆面 | 立邦BN7551-4 | 主臥 |
| 壁燈 | BMW13-4807 | 主臥 |
| 床頭牆面 | 立邦Bc0021-4 | 兒童房 |
| 窗簾窗紗 | 松育家飾布 | 窗 |
